物件掲載企業数:301|賃貸物件:3,189件|売買物件:3,240件|今週の登録物件:302
閲覧中のブラウザ(インターネットエクスプローラー)は非推奨ブラウザです。
物件が正しく表示されなかったり、正しく検索されない場合があります。最新のブラウザ(Google Chrome・Edgeなど)にてご利用お願いいたします。
  

新潟県柏崎市幸町7-23 アパート 2DK 5.7万円の物件情報

コモタウン柏崎徒歩2分、国道8号線まで直線約250mの好立地物件!

物件名
所在地
面積
間取り
所在階
築年数
方位
賃料
管理費等
共益費
敷金
保証金
礼金
種別
構造
ロイヤル恵
201号室
新潟県柏崎市幸町7-23
41.44㎡
(12.53坪)
2DK
2階
31年
5.7万円
なし
なし
1ヶ月
なし
なし
アパート・マンション・一戸建て
軽量鉄骨
  • ロイヤル恵
    JAえちご中越 柏崎不動産センター
  • この物件を問い合わせる/無料
  • TEL: 0257-23-3412

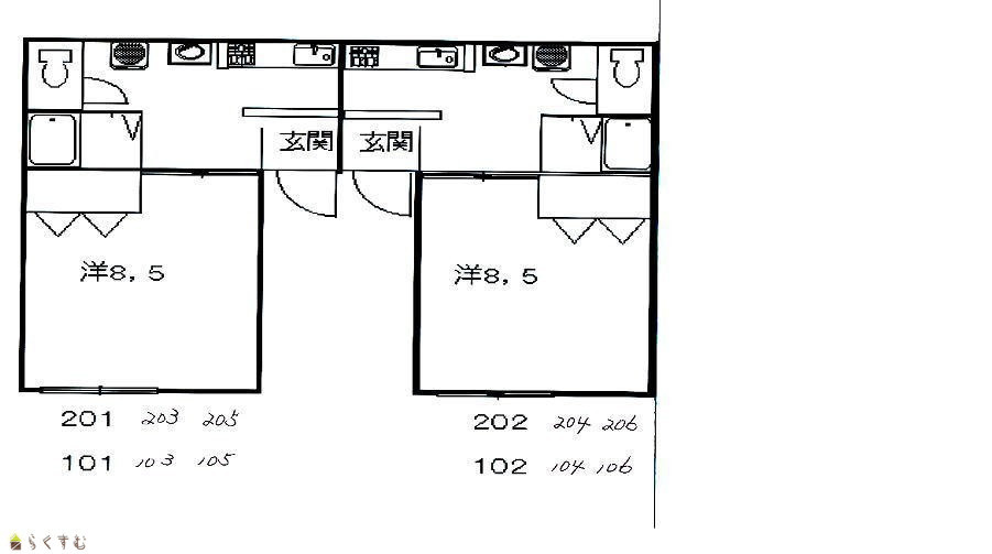
物件画像

外観 間取り
物件画像
※画像クリックで拡大表示
外観
物件画像
※画像クリックで拡大表示
間取り
詳細画像


物件概要

物件コード 00084-100093
物件名 ロイヤル恵
交通 駅:信越線 柏崎駅から徒歩8分、バス:コモタウン柏崎から徒歩5分
所在地 新潟県柏崎市幸町7-23
物件種別 アパート・マンション・一戸建て
総戸数 4戸
構造 軽量鉄骨 階建 地上2階建
所在階/階数 2階/2階 号室 201号室
面積 41.44㎡ /12.53坪 方位
間取り 2DK (和室:6畳) (洋室:6)
賃料 5.7万円/月
管理費 -
礼金 - 敷金 1ヶ月
ほか初期費用 - その他諸費用 -
更新料 - 火災(家財)保険 要加入
共益費 - 町内費 1,000円
駐車場
1台家賃込
バイク料金 -
鍵交換費 - 清掃料 -
更新事務手数料 -
保証区分 連帯保証人のみ
保証会社 区分:指定なし
-
連帯保証人 区分:要
-
仲介手数料 -
築年月 1995年4月(築31年)
利用制限 シニア(60歳以上)入居:相談、ペット:不可、楽器:不可、事務所利用:不可、ルームシェア:不可
学校区 枇杷島小学校(737m)・鏡が沖中学校(910m)
設備 閑静な住宅街、バス停近く、最寄り駅近く、日当り良好、駐車場1台無料、バストイレ別、エアコン、都市ガス、公営水道、フローリングあり、押入、礼金不要、お勧め物件
入居時期 相談
取引態様 仲介
備考 -
手数料負担割合/配分割合 貸主:-%   借主:-% / 元付:-%   客付:-%  
取り扱い会社

JAえちご中越 柏崎不動産センター

新潟県柏崎市駅前1丁目3番22号

情報登録日 2026/04/28 次回更新予定日 2026/05/12
  • ロイヤル恵
    JAえちご中越 柏崎不動産センター
  • この物件を問い合わせる/無料
  • TEL: 0257-23-3412

この物件の地図・周辺情報・行政情報

この物件の周辺情報・行政情報を詳しく見る
【周辺情報】
物件の近くにあるコンビニや銀行・学校など、アイコン付のマップで詳しく表示できます!
【行政情報】
水道料や下水道料・ガス料金など、暮らしに関係のある情報を表示しています。
セブン-イレブン 柏崎穂波町店(コンビニ)まで490m
ウオロク 柏崎店(スーパー)まで80m
柏崎信用金庫 南支店(銀行)まで560m
柏崎郵便局(郵便局)まで890m

※カメラのアイコンがある場合は、マウスをポイントするとその施設の画像がご覧いただけます。


担当取扱い店舗情報

取扱い店舗画像
JAえちご中越 柏崎不動産センター
TEL: 0257-23-3412
所在地: 新潟県柏崎市駅前1丁目3番22号
交通: 柏崎駅
営業時間: 8:30~17:00/定休日:土・日・祝
免許番号: 新潟県知事(1)第5669号 この会社の情報を詳しく見る
所属団体名: 新潟県宅地建物取引業協会 柏崎支部
取引態様: 仲介
ホームページ: http://www.ja-kasiwazaki-fudousan.jp/