物件掲載企業数:297|賃貸物件:3,618件|売買物件:3,318件|今週の登録物件:269
閲覧中のブラウザ(インターネットエクスプローラー)は非推奨ブラウザです。
物件が正しく表示されなかったり、正しく検索されない場合があります。最新のブラウザ(Google Chrome・Edgeなど)にてご利用お願いいたします。
  

新潟県柏崎市田中1-5 アパート 1K 4.7万円の物件情報

物件名
所在地
面積
間取り
所在階
築年数
方位
賃料
管理費等
共益費
敷金
保証金
礼金
種別
構造
ロイヤルミナミ
203号室
新潟県柏崎市田中1-5
28.35㎡
(8.57坪)
1K
2階
29年
指定なし
4.7万円
なし
なし
1ヶ月
なし
なし
アパート・マンション・一戸建て
鉄骨
  • ロイヤルミナミ
    JAえちご中越 柏崎不動産センター
  • この物件を問い合わせる/無料
  • TEL: 0257-23-3412

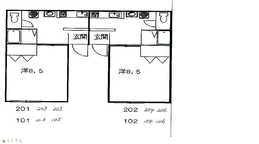
物件画像

外観 間取り
物件画像
※画像クリックで拡大表示
ロイヤルミナミ 203
物件画像
※画像クリックで拡大表示
間取り
詳細画像


物件概要

物件コード 00084-100039
物件名 ロイヤルミナミ
交通 駅:信越線 柏崎駅から徒歩20分、バス:田中から徒歩2分
所在地 新潟県柏崎市田中1-5
物件種別 アパート・マンション・一戸建て
総戸数 -
構造 鉄骨 階建 地上2階建
所在階/階数 2階/2階 号室 203号室
面積 28.35㎡ /8.57坪 方位 指定なし
間取り 1K
賃料 4.7万円/月
管理費 -
礼金 -
敷金 1ヶ月
ほか初期費用 - その他諸費用 -
更新料 - 火災(家財)保険 別途要加入
共益費 - 町内費 -
駐車場
家賃1台込み
バイク料金 -
鍵交換費 - 清掃料 -
更新事務手数料 -
保証区分 連帯保証人のみ
保証会社 区分:指定なし
-
連帯保証人 区分:要
-
仲介手数料 51,700円
築年月 1996年3月(築29年)
利用制限 二人入居:相談、ペット:不可、楽器:不可
学校区 枇杷島小学校(723m)・鏡が沖中学校(510m)
設備 日当り良好、駐車場1台無料、バストイレ別、洗面所独立、エアコン、柏崎 大和・積水物件
入居時期 即入居可
取引態様 仲介
備考 -
手数料負担割合/配分割合 貸主:-%   借主:-% / 元付:-%   客付:-%  
取り扱い会社

JAえちご中越 柏崎不動産センター

新潟県柏崎市駅前1丁目3番22号

情報登録日 2025/12/03 次回更新予定日 2026/01/02
  • ロイヤルミナミ
    JAえちご中越 柏崎不動産センター
  • この物件を問い合わせる/無料
  • TEL: 0257-23-3412

この物件の地図・周辺情報・行政情報

この物件の周辺情報・行政情報を詳しく見る
【周辺情報】
物件の近くにあるコンビニや銀行・学校など、アイコン付のマップで詳しく表示できます!
【行政情報】
水道料や下水道料・ガス料金など、暮らしに関係のある情報を表示しています。

担当取扱い店舗情報

取扱い店舗画像
JAえちご中越 柏崎不動産センター
TEL: 0257-23-3412
所在地: 新潟県柏崎市駅前1丁目3番22号
交通: 柏崎駅
営業時間: 8:30~17:00/定休日:土・日・祝
免許番号: 新潟県知事(1)第5669号 この会社の情報を詳しく見る
所属団体名: 新潟県宅地建物取引業協会 柏崎支部
取引態様: 仲介
ホームページ: http://www.ja-kasiwazaki-fudousan.jp/