物件掲載企業数:299|賃貸物件:2,911件|売買物件:3,228件|今週の登録物件:350
閲覧中のブラウザ(インターネットエクスプローラー)は非推奨ブラウザです。
物件が正しく表示されなかったり、正しく検索されない場合があります。最新のブラウザ(Google Chrome・Edgeなど)にてご利用お願いいたします。
  

新潟県十日町市中条丙982-3他 店舗 20万円の物件情報

物件名
所在地
面積
間取り
所在階
築年数
方位
賃料
管理費等
共益費
敷金
保証金
礼金
種別
構造
池田ビル
101号室
新潟県十日町市中条丙982-3他
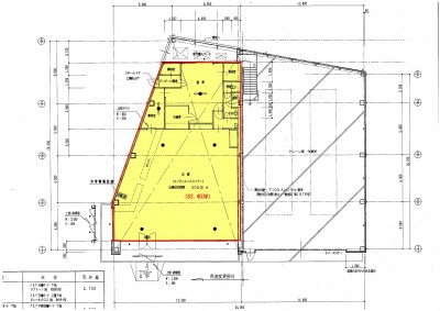
206.3㎡
(62.4坪)
-
1階
27年
-
20万円
なし
なし
2ヶ月
なし
なし
店舗
鉄筋
  • 池田ビル
    有限会社 まえざわ
  • この物件を問い合わせる/無料
  • TEL: 0257-23-7385

物件画像

外観 間取り
物件画像
※画像クリックで拡大表示
物件画像
※画像クリックで拡大表示
詳細画像


物件概要

物件コード 00081-100001
物件名 池田ビル
交通 駅:新座から徒歩10分、バス:太子堂から徒歩2分
所在地 新潟県十日町市中条丙982-3他
物件種別 店舗
総戸数 -
構造 鉄筋 階建 地上2階建
所在階/階数 1階/2階 号室 101号室
面積 206.3㎡ /62.4坪 方位 -
間取り -
賃料 20万円/月
管理費 -
礼金 -
敷金 2ヶ月
ほか初期費用 - その他諸費用 -
更新料 - 火災(家財)保険 内装、設備機器等に見合う金額
共益費 - 町内費 -
駐車場 込み バイク料金 -
鍵交換費 - 清掃料 -
更新事務手数料 -
保証区分 連帯保証人のみ
保証会社 区分:指定なし
-
連帯保証人 区分:要
-
仲介手数料 220,000円
築年月 1998年12月(築27年)
利用制限 事務所利用:可
学校区 中条小学校(1,044m)・中条中学校(317m)
設備 1階、即引き渡し可、飲食店可、スケルトン、駐車場あり
入居時期 12月上旬
取引態様 仲介
備考 -
手数料負担割合/配分割合 貸主:-%   借主:-% / 元付:-%   客付:-%  
取り扱い会社

有限会社 まえざわ

新潟県柏崎市上田尻1697番地

情報登録日 2023/05/26 次回更新予定日 2026/04/05
  • 池田ビル
    有限会社 まえざわ
  • この物件を問い合わせる/無料
  • TEL: 0257-23-7385

この物件の地図・周辺情報・行政情報

この物件の周辺情報・行政情報を詳しく見る
【周辺情報】
物件の近くにあるコンビニや銀行・学校など、アイコン付のマップで詳しく表示できます!
【行政情報】
水道料や下水道料・ガス料金など、暮らしに関係のある情報を表示しています。

担当取扱い店舗情報

取扱い店舗画像
有限会社 まえざわ
TEL: 0257-23-7385
所在地: 新潟県柏崎市上田尻1697番地
交通: 北陸自動車道柏崎インタ-から500メ-トル
営業時間: 9:00~21:00/定休日:水曜日
免許番号: 新潟県知事(5)4410号 この会社の情報を詳しく見る
所属団体名: (有)まえざわ
取引態様: 仲介
ホームページ: http://ymaezawa.sakura.ne.jp