物件掲載企業数:297|賃貸物件:3,087件|売買物件:3,285件|今週の登録物件:352
閲覧中のブラウザ(インターネットエクスプローラー)は非推奨ブラウザです。
物件が正しく表示されなかったり、正しく検索されない場合があります。最新のブラウザ(Google Chrome・Edgeなど)にてご利用お願いいたします。
  

新潟県長岡市大手通2丁目4-1 マンション 2LDK 17万円の物件情報

長岡駅徒歩5分の好立地!分譲マンション高層階☆敷地内立体駐車場空きあり(サイズ要確認)

物件名
所在地
面積
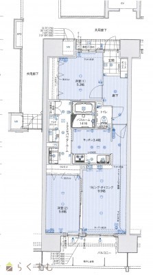
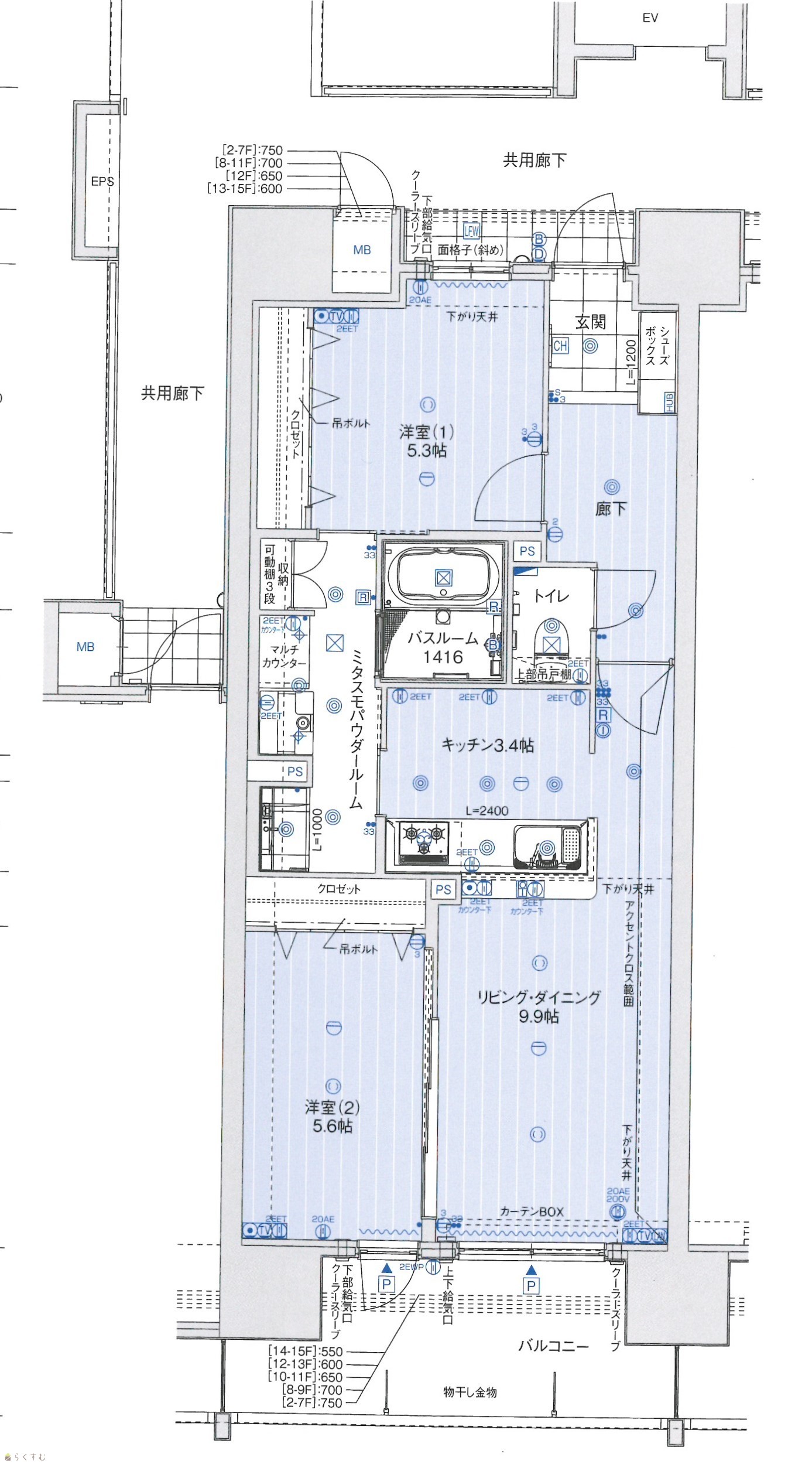
間取り
所在階
築年数
方位
賃料
管理費等
共益費
敷金
保証金
礼金
種別
構造
アルファステイツ大手通
1402号室
新潟県長岡市大手通2丁目4-1
62.51㎡
(18.9坪)
2LDK
14階
3年
17万円
なし
なし
2ヶ月
なし
1ヶ月
アパート・マンション・一戸建て
鉄筋コン
  • アルファステイツ大手通
    有限会社 グリーン土地
  • この物件を問い合わせる/無料
  • TEL: 0258-32-1222

物件画像

外観 間取り
物件画像
※画像クリックで拡大表示
外観
物件画像
※画像クリックで拡大表示
間取り
詳細画像
360度画像
リビング
※下のリンクをクリックすると、上の画像が切り替わります。

インターネットエクスプローラーでは360°画像は閲覧できません。それ以外のブラウザでご覧下さい。



物件概要

明るい南向きのお部屋です♪温水暖房ルームヒーター付で冬も安心です。
物件コード 00071-100534
物件名 アルファステイツ大手通
交通 駅:上越新幹線 長岡駅から徒歩5分
所在地 新潟県長岡市大手通2丁目4-1
物件種別 アパート・マンション・一戸建て
総戸数 56戸
構造 鉄筋コン 階建 地上15階建
所在階/階数 14階/15階 号室 1402号室
面積 62.51㎡ /18.9坪 方位
間取り 2LDK (洋室:5.6、5.3)
LD9.9K3.4
賃料 17万円/月
管理費 -
礼金 1ヶ月
敷金 2ヶ月
ほか初期費用 - その他諸費用 2年更新時更新料:新賃料の1ヶ月分
更新料 - 火災(家財)保険 15,000円
2年間
共益費 - 町内費 -
駐車場 19,000円
敷地内立体駐車場(ハイルーフ区画)※サイズ要確認
バイク料金 -
鍵交換費 - 清掃料 -
更新事務手数料 -
保証区分 連帯保証人のみ
保証会社 区分:指定なし
-
連帯保証人 区分:要
-
仲介手数料 187,000円
築年月 2022年11月(築3年)
利用制限 -
学校区 阪之上小学校(781m)・東中学校(1,344m)
設備 バス停近く、最寄り駅近く、高層(タワー)物件、日当り良好、エレベーター、屋上、宅配BOX、敷地内ゴミ置き場、LDK12畳以上、築5年以内、駐輪場あり、南向き、防犯カメラ、エントランスオートロック、システムキッチン、対面キッチン、ガスコンロ 設置済み、バストイレ別、浴室1坪以上、追いだき機能付き、浴室乾燥機、温水洗浄便座、洗面所独立、エアコン、都市ガス、バルコニー、全居室フローリング、洗濯機置場 室内、脱衣所、玄関収納、クロゼット、クロゼット2ヵ所、TVモニター付きインターホン、即入居可、保証会社利用可能、新築・築浅物件
入居時期 即入居可
取引態様 仲介
備考 駐車場は別途契約が必要です。2年更新時に新賃料の1ヶ月分の更新料がかかります。
手数料負担割合/配分割合 貸主:-%   借主:100% / 元付:50%   客付:50%  
取り扱い会社

有限会社 グリーン土地

新潟県長岡市本町3-1-9 アーバンヒルズ長岡1F

情報登録日 2026/03/02 次回更新予定日 2026/03/17
  • アルファステイツ大手通
    有限会社 グリーン土地
  • この物件を問い合わせる/無料
  • TEL: 0258-32-1222

この物件の地図・周辺情報・行政情報

この物件の周辺情報・行政情報を詳しく見る
【周辺情報】
物件の近くにあるコンビニや銀行・学校など、アイコン付のマップで詳しく表示できます!
【行政情報】
水道料や下水道料・ガス料金など、暮らしに関係のある情報を表示しています。

担当取扱い店舗情報

取扱い店舗画像
有限会社 グリーン土地
TEL: 0258-32-1222
所在地: 新潟県長岡市本町3-1-9 アーバンヒルズ長岡1F
交通: 長岡駅
営業時間: 9:00~17:00/定休日:日・祝・祭日
免許番号: 新潟県知事(10)3038号 この会社の情報を詳しく見る
所属団体名: 新潟県宅地建物取引協会 長岡支部
取引態様: 仲介
ホームページ: https://www.greentoti.com