物件掲載企業数:299|賃貸物件:3,629件|売買物件:3,313件|今週の登録物件:206
閲覧中のブラウザ(インターネットエクスプローラー)は非推奨ブラウザです。
物件が正しく表示されなかったり、正しく検索されない場合があります。最新のブラウザ(Google Chrome・Edgeなど)にてご利用お願いいたします。
  

新潟県三島郡出雲崎町木折町272 一戸建て 6K 3.5万円の物件情報

出雲崎海遊広場まで車で2分 海近物件!

物件名
所在地
面積
間取り
所在階
築年数
方位
賃料
管理費等
共益費
敷金
保証金
礼金
種別
構造
出雲崎町木折町 戸建賃貸
新潟県三島郡出雲崎町木折町272
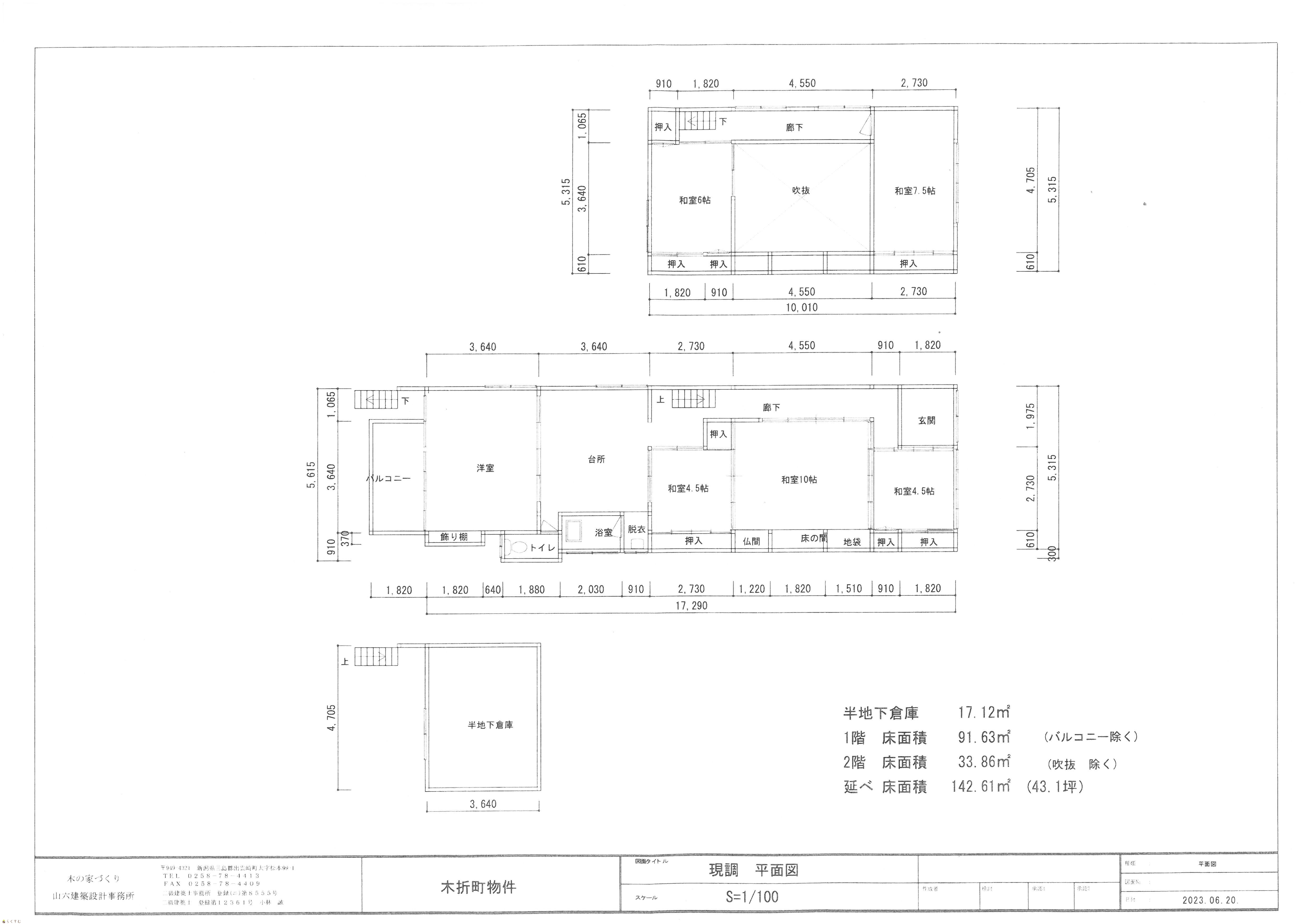
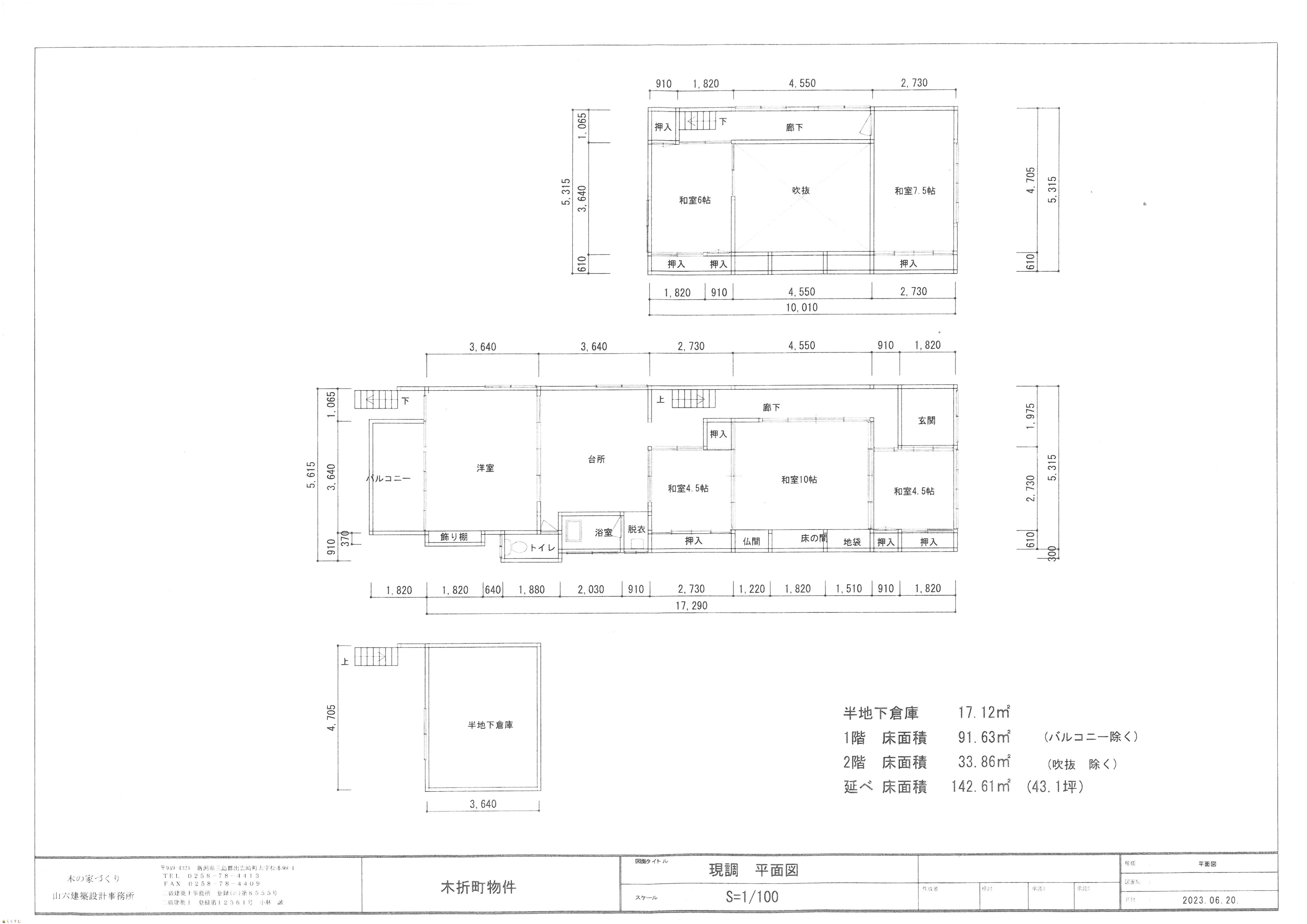
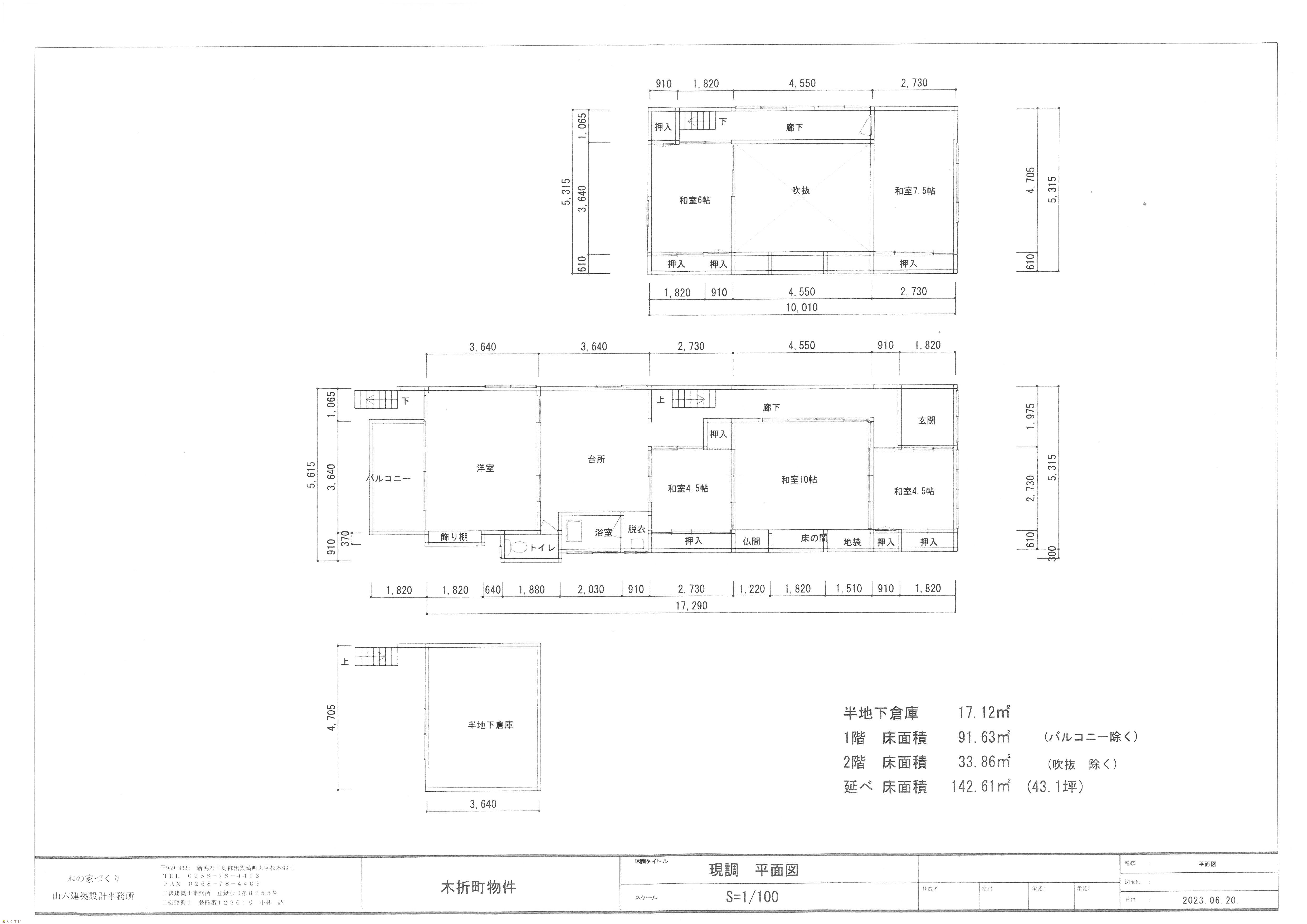
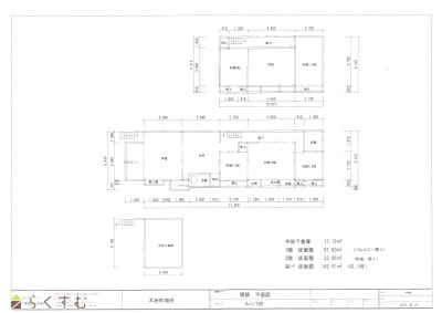
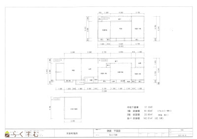
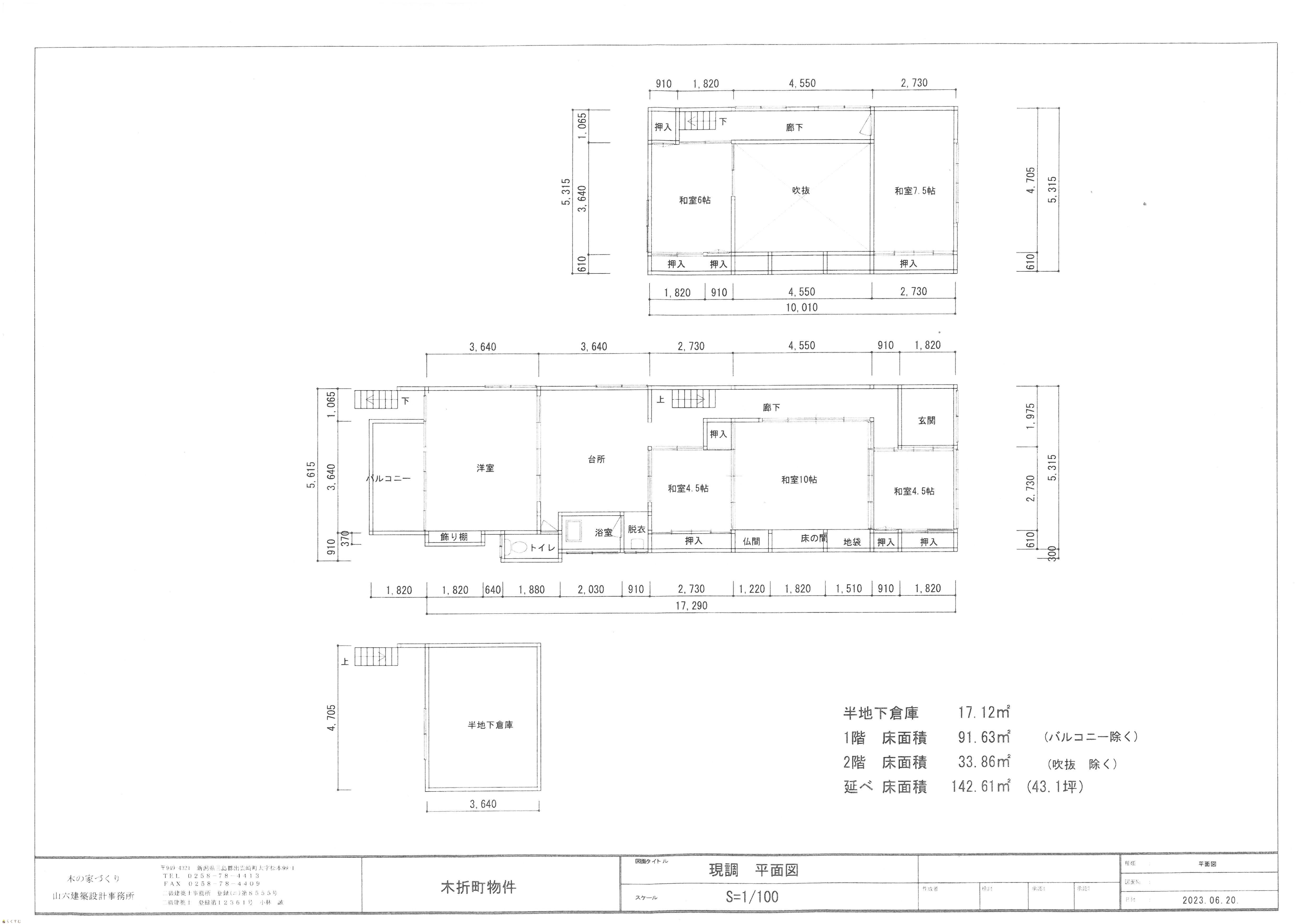
142.61㎡
(43.13坪)
6K
-
不詳
-
3.5万円
なし
なし
3.5万円
なし
3.5万円
アパート・マンション・一戸建て
木造
  • 出雲崎町木折町 戸建賃貸
    株式会社 山六木材
  • この物件を問い合わせる/無料
  • TEL: 0258-78-4413

物件画像

外観 間取り
物件画像
※画像クリックで拡大表示
外観
物件画像
※画像クリックで拡大表示
間取り
詳細画像


物件概要

物件コード 00063-100014
物件名 出雲崎町木折町 戸建賃貸
交通 駅:越後線 出雲崎駅から徒歩52分、バス:出雲崎車庫前から徒歩11分
所在地 新潟県三島郡出雲崎町木折町272
物件種別 アパート・マンション・一戸建て
総戸数 -
構造 木造 階建 地上2階建
所在階/階数 - 号室 -
面積 142.61㎡ /43.13坪 方位 -
間取り 6K (和室:4.5畳、10畳、4.5畳、6畳、7.5畳) (洋室:8)
賃料 3.5万円/月
管理費 -
礼金 3.5万円
敷金 3.5万円
ほか初期費用 - その他諸費用 -
更新料 - 火災(家財)保険 -
共益費 - 町内費 -
駐車場 - バイク料金 -
鍵交換費 - 清掃料 -
更新事務手数料 -
保証区分 保証会社のみ
保証会社 区分:加入要
保証会社名:その他 (CIZ)
-
連帯保証人 区分:不要
-
仲介手数料 35,000円
築年月 不詳
利用制限 ペット:相談、楽器:不可、ルームシェア:不可
学校区 出雲崎小学校(2,449m)・出雲崎中学校(1,650m)
設備 日当り良好、海に近い、倉庫、駐車場1台無料、バストイレ別、温水洗浄便座、LPG、公営水道、下水、バルコニー、ペット相談可、家具付き
入居時期 相談
取引態様 仲介
備考 ・契約期間中の修繕はエアコン、給湯器以外は、借主にて点検・修理・交換費用は負担となります。
・敷地内土地草刈かり等は借主にて行ってください。
・火災(家財)保険は借主にて加入ください。
・駐車場は敷地内に1台駐車可(軽自動車)
・ペット要相談、DIY要相談。
・自治会費(町内会費)支払いあり。 自治会費(町内会費)は借主にて自治会へ直接お支払いください。
・インターネット回線引込工事、それに伴う費用、付属機器等、申込手続きは借主の負担にて設置となります。
手数料負担割合/配分割合 貸主:-%   借主:-% / 元付:-%   客付:-%  
取り扱い会社

株式会社 山六木材

新潟県三島郡出雲崎町松本99-1

情報登録日 2025/10/27 次回更新予定日 2025/11/12
  • 出雲崎町木折町 戸建賃貸
    株式会社 山六木材
  • この物件を問い合わせる/無料
  • TEL: 0258-78-4413

この物件の地図・周辺情報・行政情報

この物件の周辺情報・行政情報を詳しく見る
【周辺情報】
物件の近くにあるコンビニや銀行・学校など、アイコン付のマップで詳しく表示できます!
【行政情報】
水道料や下水道料・ガス料金など、暮らしに関係のある情報を表示しています。
出雲崎井鼻簡易郵便局(郵便局)まで240m
第四北越銀行 出雲崎支店(銀行)まで1400m
出雲崎町役場(市区町村機関)まで4400m

※カメラのアイコンがある場合は、マウスをポイントするとその施設の画像がご覧いただけます。


担当取扱い店舗情報

取扱い店舗画像
株式会社 山六木材
TEL: 0258-78-4413
所在地: 新潟県三島郡出雲崎町松本99-1
交通: JR 出雲崎駅
営業時間: 8:15~17:30/定休日:水曜・年末年始休暇、GW、夏季休暇
免許番号: 新潟県知事(3)第5114号 この会社の情報を詳しく見る
所属団体名: 新潟県宅地建物取引協会 長岡支部
取引態様: 仲介
ホームページ: https://yama-roku-moku.com/