物件掲載企業数:299|賃貸物件:2,912件|売買物件:3,226件|今週の登録物件:353
閲覧中のブラウザ(インターネットエクスプローラー)は非推奨ブラウザです。
物件が正しく表示されなかったり、正しく検索されない場合があります。最新のブラウザ(Google Chrome・Edgeなど)にてご利用お願いいたします。
  

新潟県長岡市新組町2167-5 店舗 14.3万円の物件情報

焼き肉店跡

物件名
所在地
面積
間取り
所在階
築年数
方位
賃料
管理費等
共益費
敷金
保証金
礼金
種別
構造
新組町★貸店舗
新潟県長岡市新組町2167-5
73.11㎡
(22.11坪)
-
-
27年
-
14.3万円
なし
なし
2ヶ月
なし
なし
店舗
木造
  • 新組町★貸店舗
    佐藤リアルティ 株式会社
  • この物件を問い合わせる/無料
  • TEL: 0258-34-3718

物件画像

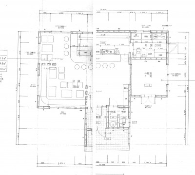
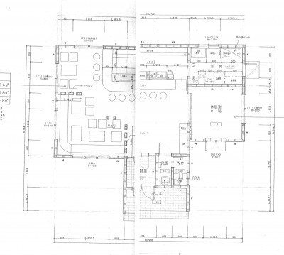
外観 間取り
物件画像
※画像クリックで拡大表示
外観
物件画像
※画像クリックで拡大表示
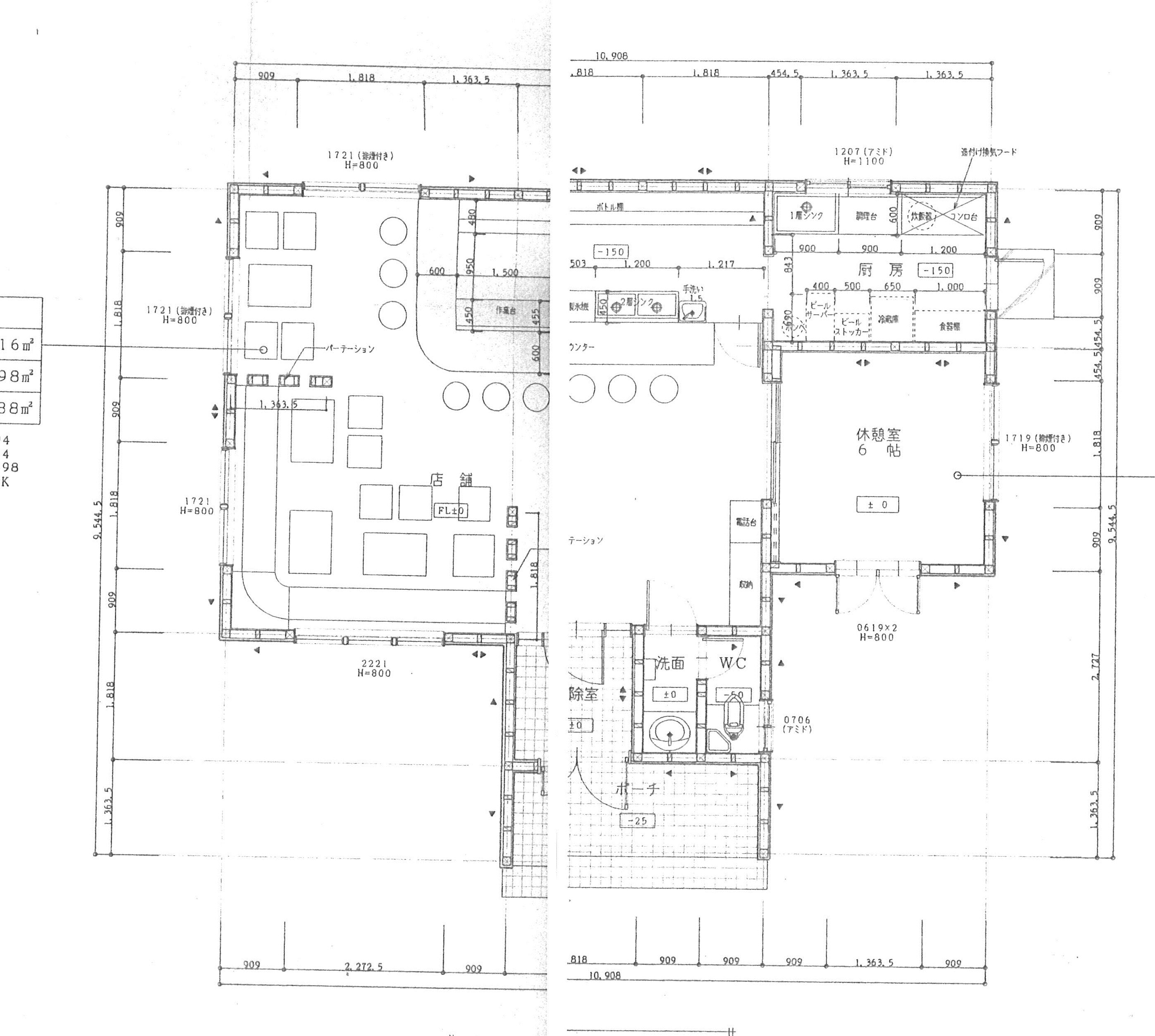
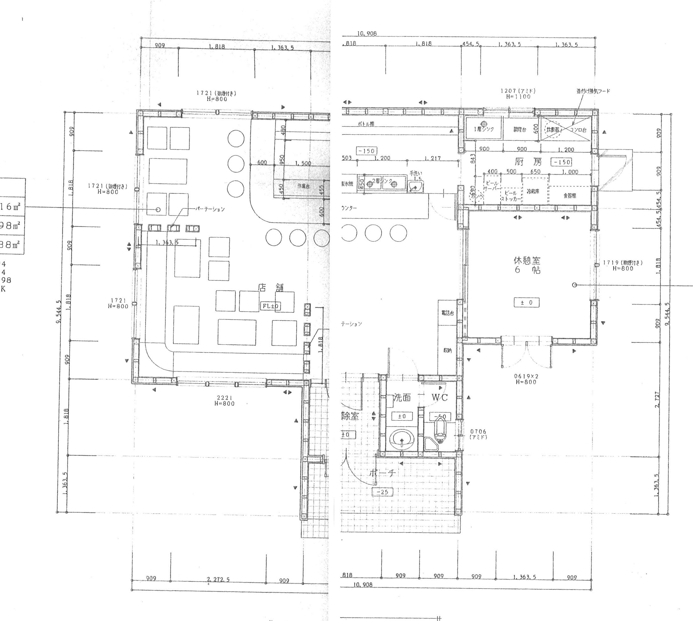
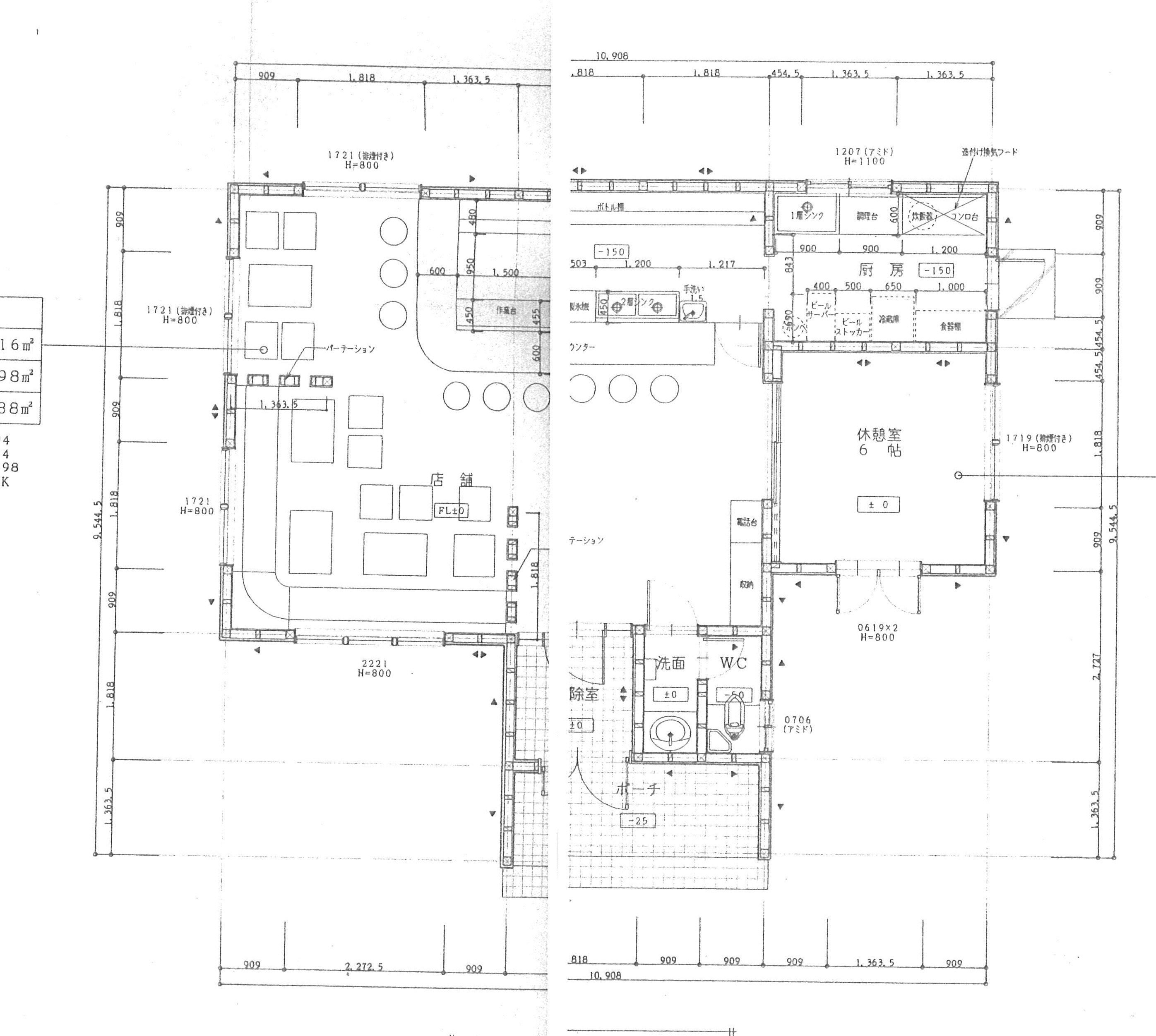
間取り
詳細画像


物件概要

物件コード 00056-100007
物件名 新組町★貸店舗
交通 駅:信越線 押切駅から徒歩21分、バス:大野から徒歩3分
所在地 新潟県長岡市新組町2167-5
物件種別 店舗
総戸数 -
構造 木造 階建 地上1階建
所在階/階数 - 号室 -
面積 73.11㎡ /22.11坪 方位 -
間取り -
賃料 14.3万円/月
管理費 -
礼金 -
敷金 2ヶ月
ほか初期費用 - その他諸費用 融雪負担金2万円/年
更新料 - 火災(家財)保険 -
共益費 - 町内費 実費負担
駐車場
7台~8台
バイク料金 -
鍵交換費 - 清掃料 -
更新事務手数料 -
保証区分 連帯保証人のみ
保証会社 区分:指定なし
-
連帯保証人 区分:要
-
仲介手数料 143,000円
築年月 1998年4月(築27年)
利用制限 法人:可、事務所利用:可
学校区 新組小学校(1,379m)・堤岡中学校(476m)
設備 1階、飲食店可、居抜き、給湯、駐車場あり
入居時期 2024/6/1
取引態様 仲介
備考 町内費・消雪年会費は借主負担
手数料負担割合/配分割合 貸主:-%   借主:100% / 元付:50%   客付:50%  
取り扱い会社

佐藤リアルティ 株式会社

新潟県長岡市笹崎1-4-5武蔵ビル 2F

情報登録日 2024/05/21 次回更新予定日 2026/04/05
  • 新組町★貸店舗
    佐藤リアルティ 株式会社
  • この物件を問い合わせる/無料
  • TEL: 0258-34-3718

この物件の地図・周辺情報・行政情報

この物件の周辺情報・行政情報を詳しく見る
【周辺情報】
物件の近くにあるコンビニや銀行・学校など、アイコン付のマップで詳しく表示できます!
【行政情報】
水道料や下水道料・ガス料金など、暮らしに関係のある情報を表示しています。

担当取扱い店舗情報

取扱い店舗画像
佐藤リアルティ 株式会社
TEL: 0258-34-3718
所在地: 新潟県長岡市笹崎1-4-5武蔵ビル 2F
交通: 宮内駅
営業時間: 9:00~18:00/定休日:日、祝日
免許番号: 新潟県知事(3)第5117号 この会社の情報を詳しく見る
所属団体名: 全日本不動産協会 新潟県本部
取引態様: 仲介
ホームページ: http://sato-realty.co.jp/