物件掲載企業数:299|賃貸物件:2,911件|売買物件:3,224件|今週の登録物件:320
閲覧中のブラウザ(インターネットエクスプローラー)は非推奨ブラウザです。
物件が正しく表示されなかったり、正しく検索されない場合があります。最新のブラウザ(Google Chrome・Edgeなど)にてご利用お願いいたします。
  

新潟県三条市神明町2-1 店舗 7.7万円の物件情報

1階事務所兼店舗

物件名
所在地
面積
間取り
所在階
築年数
方位
賃料
管理費等
共益費
敷金
保証金
礼金
種別
構造
パルム2号館
105号室
新潟県三条市神明町2-1
63.75㎡
(19.28坪)
-
1階
38年
-
7.7万円
なし
なし
7万円
なし
7万円
店舗
鉄骨鉄筋コン
  • パルム2号館
    株式会社 ユタカ不動産
  • この物件を問い合わせる/無料
  • TEL: 0256-35-5825

物件画像

外観 間取り
物件画像
※画像クリックで拡大表示
外観
物件画像
※画像クリックで拡大表示
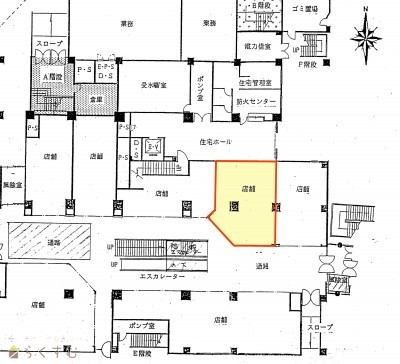
図面
詳細画像
360度画像
洋室
※下のリンクをクリックすると、上の画像が切り替わります。

インターネットエクスプローラーでは360°画像は閲覧できません。それ以外のブラウザでご覧下さい。



物件概要

2025年11月19日以降内覧可★
物件コード 00052-100155
物件名 パルム2号館
交通 駅:弥彦線 北三条駅から徒歩9分、バス:三條信用組合中央支店から徒歩2分
所在地 新潟県三条市神明町2-1
物件種別 店舗
総戸数 -
構造 鉄骨鉄筋コン 階建 地上14階建
所在階/階数 1階/14階 号室 105号室
面積 63.75㎡ /19.28坪 方位 -
間取り -
賃料 7.7万円/月
管理費 -
礼金 7万円
敷金 7万円
ほか初期費用 - その他諸費用 -
更新料 - 火災(家財)保険 加入必須
共益費 - 町内費 -
駐車場 近有 13,200円/月 バイク料金 -
鍵交換費 - 清掃料 -
更新事務手数料 -
保証区分 連帯保証人+保証会社
保証会社 区分:加入要
保証会社名:その他 (ジェイリース株式会社)
初回保証料:月額総額の100%。 継続保証料(年):月額総額の10%。
連帯保証人 区分:要
-
仲介手数料 77,000円
築年月 1988年3月(築38年)
利用制限 事務所利用:可
学校区 裏館小学校(1,195m)・第三中学校(1,032m)
設備 1階
入居時期 2025年12月上旬
取引態様 仲介
備考 トイレは共用
手数料負担割合/配分割合 貸主:0%   借主:100% / 元付:50%   客付:50%  
取り扱い会社

株式会社 ユタカ不動産

新潟県三条市旭町1丁目1-19-3ユタカビル

情報登録日 2025/08/22 次回更新予定日 2026/04/06
  • パルム2号館
    株式会社 ユタカ不動産
  • この物件を問い合わせる/無料
  • TEL: 0256-35-5825

この物件の地図・周辺情報・行政情報

この物件の周辺情報・行政情報を詳しく見る
【周辺情報】
物件の近くにあるコンビニや銀行・学校など、アイコン付のマップで詳しく表示できます!
【行政情報】
水道料や下水道料・ガス料金など、暮らしに関係のある情報を表示しています。

担当取扱い店舗情報

取扱い店舗画像
株式会社 ユタカ不動産
TEL: 0256-35-5825
所在地: 新潟県三条市旭町1丁目1-19-3ユタカビル
交通: 東三条駅
営業時間: 9:00~18:00/定休日:火曜・祭日
免許番号: 新潟見知事(9)第3203号 この会社の情報を詳しく見る
所属団体名: 新潟県宅地建物取引協会 三条支部
取引態様: 仲介
ホームページ: http://www.yutakafudousan.com