物件掲載企業数:299|賃貸物件:2,911件|売買物件:3,228件|今週の登録物件:348
閲覧中のブラウザ(インターネットエクスプローラー)は非推奨ブラウザです。
物件が正しく表示されなかったり、正しく検索されない場合があります。最新のブラウザ(Google Chrome・Edgeなど)にてご利用お願いいたします。
  

新潟県長岡市千秋2丁目2788番地1 事務所 75.46万円の物件情報

窓が多くゆとりのある空間です。

物件名
所在地
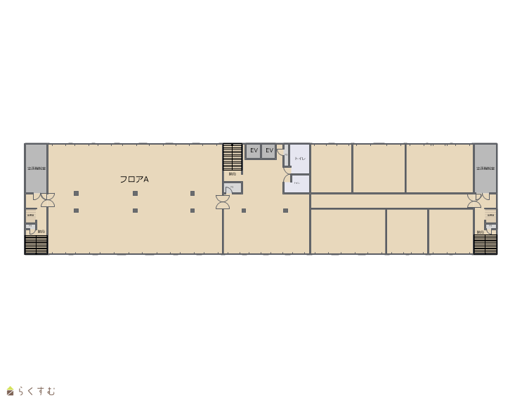
面積
間取り
所在階
築年数
方位
賃料
管理費等
共益費
敷金
保証金
礼金
種別
構造
千秋が原ビル
6-A号室
新潟県長岡市千秋2丁目2788番地1
453.25㎡
(137.1坪)
-
6階
40年
-
75.46万円
なし
あり
2ヶ月
なし
なし
事務所
鉄骨鉄筋コン
  • 千秋が原ビル
    髙頭不動産 株式会社
  • この物件を問い合わせる/無料
  • TEL: 0120-410-420

物件画像

外観 間取り
物件画像
※画像クリックで拡大表示
外観
物件画像
※画像クリックで拡大表示
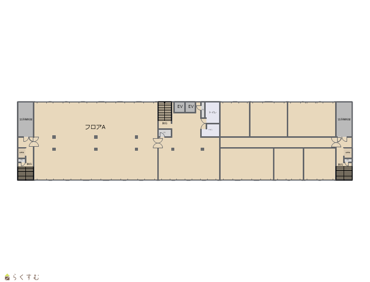
間取り図
詳細画像


物件概要

近くに広い駐車場がありますので、複数台駐車可能です。
物件コード 00040-101092
物件名 千秋が原ビル
交通 駅:信越線 長岡駅から徒歩49分、バス:本社営業所前から徒歩2分
所在地 新潟県長岡市千秋2丁目2788番地1
物件種別 事務所
総戸数 -
構造 鉄骨鉄筋コン 階建 地上8階建
所在階/階数 6階/8階 号室 6-A号室
面積 453.25㎡ /137.1坪 方位 -
間取り -
賃料 75.46万円/月
管理費 -
礼金 - 敷金 2ヶ月
ほか初期費用 - その他諸費用 -
更新料 - 火災(家財)保険 -
共益費 241,400円
町内費 -
駐車場 7,700円
近隣駐車場あり
バイク料金 -
鍵交換費 - 清掃料 -
更新事務手数料 -
保証区分 連帯保証人のみ
保証会社 区分:指定なし
-
連帯保証人 区分:要
審査等で保証会社に加入していただく場合があります。
仲介手数料 754,600円
築年月 1985年11月(築40年)
利用制限 法人:可、事務所利用:可
学校区 大島小学校(1,186m)・大島中学校(1,046m)
設備 2階以上、エアコン、男女トイレ別、エレベーター、給湯、駐車場あり
入居時期 即入居可
取引態様 仲介
備考 ※電気・ガス・水道 別途請求
※定期借家契約(2年)
※内装工事・撤去費用 借主負担
手数料負担割合/配分割合 貸主:-%   借主:100% / 元付:50%   客付:50%  
取り扱い会社

髙頭不動産 株式会社

新潟県長岡市千歳1-3-25

情報登録日 2024/11/07 次回更新予定日 2026/04/05
  • 千秋が原ビル
    髙頭不動産 株式会社
  • この物件を問い合わせる/無料
  • TEL: 0120-410-420

この物件の地図・周辺情報・行政情報

この物件の周辺情報・行政情報を詳しく見る
【周辺情報】
物件の近くにあるコンビニや銀行・学校など、アイコン付のマップで詳しく表示できます!
【行政情報】
水道料や下水道料・ガス料金など、暮らしに関係のある情報を表示しています。

担当取扱い店舗情報

取扱い店舗画像
髙頭不動産 株式会社
TEL: 0120-1818-27
所在地: 新潟県長岡市千歳1-3-25
交通: 長岡駅
営業時間: 8時30分~17時30分(大手支店は9時~18時)/定休日:本社:土日祝日(事前予約での対応可能)、支店:日曜祝日第5土曜(毎年2月下旬から3月は休みなし)
免許番号: 新潟県知事(17)第191号 この会社の情報を詳しく見る
所属団体名: 新潟県宅地建物取引協会 長岡支部
取引態様: 仲介
ホームページ: http://www.takato-f.com