物件掲載企業数:299|賃貸物件:2,911件|売買物件:3,228件|今週の登録物件:350
閲覧中のブラウザ(インターネットエクスプローラー)は非推奨ブラウザです。
物件が正しく表示されなかったり、正しく検索されない場合があります。最新のブラウザ(Google Chrome・Edgeなど)にてご利用お願いいたします。
  

新潟県小千谷市東栄1丁目7-24 店舗 20万円の物件情報

小千谷市内の人気レストラン(現在営業中)

物件名
所在地
面積
間取り
所在階
築年数
方位
賃料
管理費等
共益費
敷金
保証金
礼金
種別
構造
小千谷市  イタリアンレストラン
新潟県小千谷市東栄1丁目7-24
77.11㎡
(23.32坪)
-
2階
39年
-
20万円
6,000円/月
なし
3ヶ月
なし
1ヶ月
店舗
木造
  • 小千谷市  イタリアンレストラン
    ふどうさんの相談所 (ライフデザイン合同会社 イオン長岡店)
  • この物件を問い合わせる/無料
  • TEL: 0258-94-4370

物件画像

外観 間取り
物件画像
※画像クリックで拡大表示
外観
物件画像
※画像クリックで拡大表示
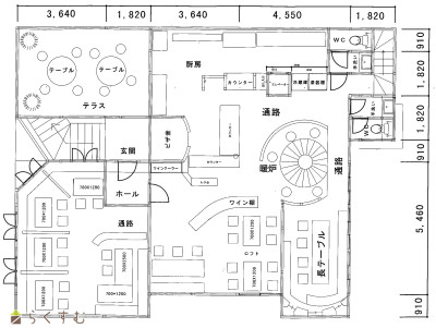
2階平面図
詳細画像


物件概要

物件コード 00039-100090
物件名 小千谷市  イタリアンレストラン
交通 駅:上越線 小千谷駅から徒歩9分、バス:小千谷車庫前から徒歩3分
所在地 新潟県小千谷市東栄1丁目7-24
物件種別 店舗
総戸数 -
構造 木造 階建 地上2階建
所在階/階数 2階/2階 号室 -
面積 77.11㎡ /23.32坪 方位 -
間取り -
賃料 20万円/月
管理費 6,000円/月
礼金 1ヶ月
敷金 3ヶ月
ほか初期費用 - その他諸費用 -
更新料 100,000円
2年毎
火災(家財)保険 賃借人にて借家人賠償保険にご加入ください
共益費 - 町内費 -
駐車場 賃料に含む 10台分 バイク料金 -
鍵交換費 - 清掃料 -
更新事務手数料 -
保証区分 保証会社のみ
保証会社 区分:加入要
保証会社名:ジェイリース
J AKINAI 100% 1年更新10%
家賃保証金 206,000円
連帯保証人 区分:不要
-
仲介手数料 220,000円
築年月 1986年7月(築39年)
利用制限 法人:可、学生:不可、事務所利用:可
学校区 東小千谷小学校(168m)・東小千谷中学校(473m)
設備 2階以上、融雪設備あり、居抜き
入居時期 相談
取引態様 仲介
備考 -
手数料負担割合/配分割合 貸主:-%   借主:100% / 元付:50%   客付:50%  
取り扱い会社

ふどうさんの相談所 (ライフデザイン合同会社 イオン長岡店)

新潟県長岡市古正寺1-249-1イオン長岡店3F

情報登録日 2026/03/15 次回更新予定日 2026/04/05
  • 小千谷市  イタリアンレストラン
    ふどうさんの相談所 (ライフデザイン合同会社 イオン長岡店)
  • この物件を問い合わせる/無料
  • TEL: 0258-94-4370

この物件の地図・周辺情報・行政情報

この物件の周辺情報・行政情報を詳しく見る
【周辺情報】
物件の近くにあるコンビニや銀行・学校など、アイコン付のマップで詳しく表示できます!
【行政情報】
水道料や下水道料・ガス料金など、暮らしに関係のある情報を表示しています。

担当取扱い店舗情報

取扱い店舗画像
ふどうさんの相談所 (ライフデザイン合同会社 イオン長岡店)
TEL: 0258-94-4370
所在地: 新潟県長岡市古正寺1-249-1イオン長岡店3F
交通: 長岡駅
営業時間: 10:00~20:00/定休日:年末年始・特別日はお休みいたします
免許番号: 新潟県知事(3)第5090号 この会社の情報を詳しく見る
所属団体名: 全日本不動産協会 新潟県本部
取引態様: 仲介
ホームページ: http://life-dn.com