物件掲載企業数:297|賃貸物件:3,622件|売買物件:3,319件|今週の登録物件:235
閲覧中のブラウザ(インターネットエクスプローラー)は非推奨ブラウザです。
物件が正しく表示されなかったり、正しく検索されない場合があります。最新のブラウザ(Google Chrome・Edgeなど)にてご利用お願いいたします。
  

新潟県長岡市喜多町1087番地1 倉庫・工場・その他 33万円の物件情報

利便性の良い 喜多町の貸倉庫・貸工場です!

物件名
所在地
面積
間取り
所在階
築年数
方位
賃料
管理費等
共益費
敷金
保証金
礼金
種別
構造
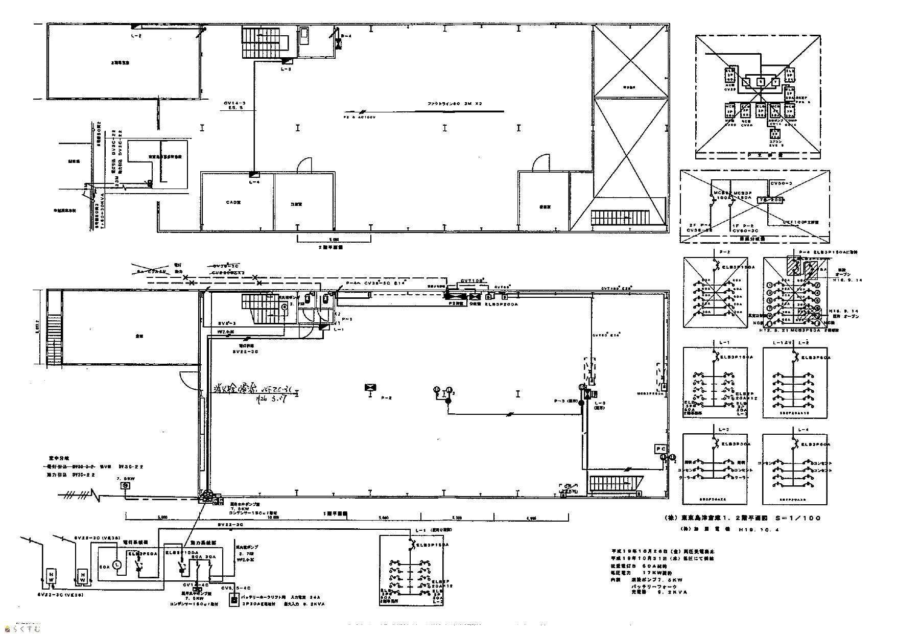
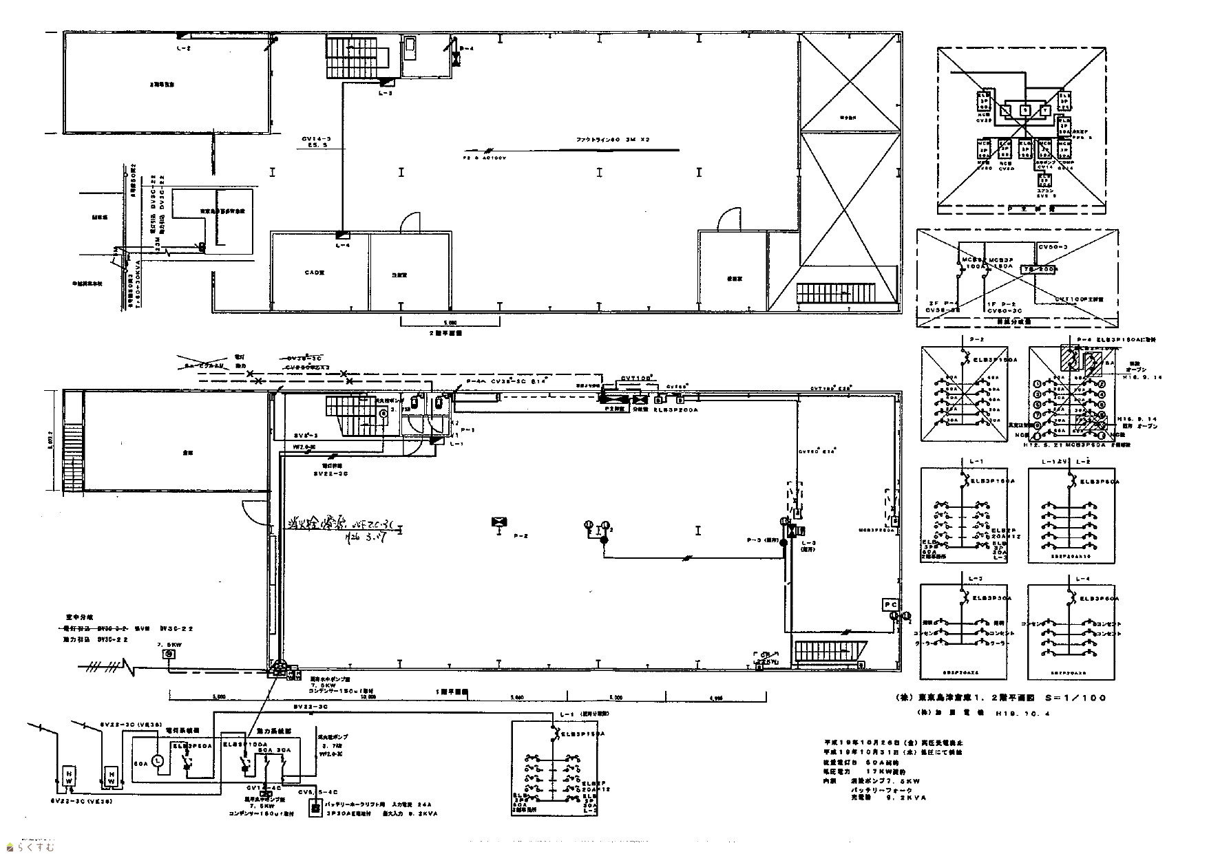
喜多町貸倉庫・貸工場
新潟県長岡市喜多町1087番地1
1,072.46㎡
(324.41坪)
-
-
46年
-
33万円
なし
なし
90万円
なし
なし
倉庫・工場・その他
木造鉄骨
  • 喜多町貸倉庫・貸工場
    株式会社 長岡総合開発
  • この物件を問い合わせる/無料
  • TEL: 0258-46-8777

物件画像

外観 間取り
物件画像
※画像クリックで拡大表示
外観
物件画像
※画像クリックで拡大表示
平面
詳細画像


物件概要

ご見学のお申込み、またはご不明な点がある場合は、お問い合わせフォームよりお気軽にご相談ください♪お電話でもかまいません。
物件コード 00030-101151
物件名 喜多町貸倉庫・貸工場
交通 駅:上越新幹線 長岡駅から徒歩56分、バス:喜多町から徒歩3分
所在地 新潟県長岡市喜多町1087番地1
物件種別 倉庫・工場・その他
総戸数 1戸
構造 木造鉄骨 階建 地上2階建
所在階/階数 - 号室 -
面積 1,072.46㎡ /324.41坪 方位 -
間取り -
賃料 33万円/月
管理費 -
礼金 -
敷金 90万円
ほか初期費用 - その他諸費用 ※継続保証料月額総賃料の10%/毎年
更新料 あり 火災(家財)保険 別途要加入(実費)
共益費 - 町内費 -
駐車場 付無料(10台以上) バイク料金 -
鍵交換費 - 清掃料 -
更新事務手数料 -
保証区分 連帯保証人+保証会社
保証会社 区分:加入要
保証会社名:ジェイリース
-
家賃保証金 330,000円
連帯保証人 区分:要
-
仲介手数料 330,000円
築年月 1979年10月(築46年)
利用制限 法人:可、事務所利用:可
学校区 日越小学校(975m)・西中学校(819m)
設備 駐車場あり
入居時期 相談
取引態様 仲介
備考 ・保証会社利用必須となります。
 利用プラン J・AKINAI
 初回保証料:月額総賃料の100%・継続保証料:月額総賃料の10%(年1回)

※現況でのお引渡しとなります。(改装等要相談)
※掲載図面より現況優先となります。
※町内費・その他地域住民としての諸費用及び営業上の会費等 借主様負担となります。
※準工業地域
手数料負担割合/配分割合 貸主:-%   借主:100% / 元付:-%   客付:-%  
取り扱い会社

株式会社 長岡総合開発

新潟県長岡市南七日町89-21

情報登録日 2025/09/30 次回更新予定日 2026/01/02
  • 喜多町貸倉庫・貸工場
    株式会社 長岡総合開発
  • この物件を問い合わせる/無料
  • TEL: 0258-46-8777

この物件の地図・周辺情報・行政情報

この物件の周辺情報・行政情報を詳しく見る
【周辺情報】
物件の近くにあるコンビニや銀行・学校など、アイコン付のマップで詳しく表示できます!
【行政情報】
水道料や下水道料・ガス料金など、暮らしに関係のある情報を表示しています。

担当取扱い店舗情報

取扱い店舗画像
株式会社 長岡総合開発
TEL: 0258-46-8777
所在地: 新潟県長岡市南七日町89-21
交通: バス停「南七日町」徒歩3分
営業時間: 9:00~18:00/定休日:日曜・祭日
免許番号: 新潟県知事(10)2876号 この会社の情報を詳しく見る
所属団体名: 新潟県宅地建物取引業協会 長岡支部
取引態様: 仲介
ホームページ: http://www.nagaoka-sk.co.jp