物件掲載企業数:301|賃貸物件:3,175件|売買物件:3,245件|今週の登録物件:72
閲覧中のブラウザ(インターネットエクスプローラー)は非推奨ブラウザです。
物件が正しく表示されなかったり、正しく検索されない場合があります。最新のブラウザ(Google Chrome・Edgeなど)にてご利用お願いいたします。
  

新潟県長岡市下山2丁目2421−2 事務所 7.7万円の物件情報

【駐車場2台付き(追加駐車場相談可)】事務所としても店舗としても利用可能!フェニックス大橋近くでアクセス抜群♬キッチン・水洗トイレ付きです(^^♪

物件名
所在地
面積
間取り
所在階
築年数
方位
賃料
管理費等
共益費
敷金
保証金
礼金
種別
構造
ザ・ライトウィング 1階 事務所・店舗
103号室
新潟県長岡市下山2丁目2421−2
46.68㎡
(14.12坪)
-
1階
39年
-
7.7万円
なし
なし
14万円
なし
7.7万円
事務所
木造
  • ザ・ライトウィング 1階 事務所・店舗
    株式会社 長岡総合開発
  • この物件を問い合わせる/無料
  • TEL: 0258-46-8777

物件画像

外観 間取り
物件画像
※画像クリックで拡大表示
外観
物件画像
※画像クリックで拡大表示
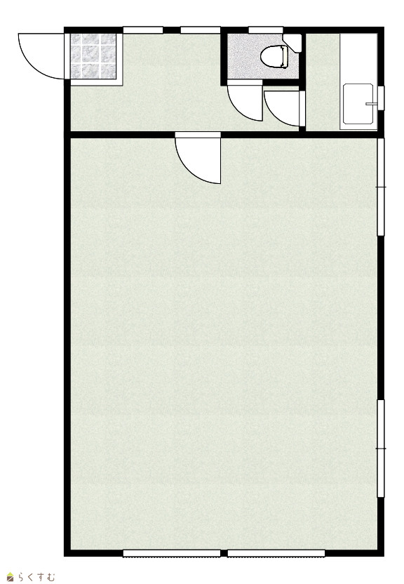
間取り
詳細画像


物件概要

ご見学のお申込み、またはご不明な点がある場合は、お問い合わせフォームよりお気軽にご相談ください♪お電話でもかまいません。
物件コード 00030-100983
物件名 ザ・ライトウィング 1階 事務所・店舗
交通 駅:上越線 宮内駅から徒歩44分、バス:下山から徒歩2分
所在地 新潟県長岡市下山2丁目2421−2
物件種別 事務所
総戸数 -
構造 木造 階建 地上2階建
所在階/階数 1階/2階 号室 103号室
面積 46.68㎡ /14.12坪 方位 -
間取り -
賃料 7.7万円/月
管理費 -
礼金 7.7万円
敷金 14万円
ほか初期費用 - その他諸費用 -
更新料 - 火災(家財)保険 別途要加入
共益費 - 町内費 別途実費
駐車場 2台込み バイク料金 -
鍵交換費 - 清掃料 -
更新事務手数料 -
保証区分 連帯保証人+保証会社
保証会社 区分:加入要
保証会社名:ジェイリース
初回保証料:月額総賃料の100%(契約時)・継続保証料:月額総賃料の10%(毎年)
家賃保証金 77,000円
連帯保証人 区分:要
-
仲介手数料 77,000円
築年月 1987年5月(築39年)
利用制限 法人:可、事務所利用:可
学校区 希望が丘小学校(433m)・西中学校(865m)
設備 1階、融雪設備あり、即引き渡し可、スケルトン、駐車場あり
入居時期 即入居可
取引態様 仲介
備考 ・敷地内駐車場2台付です。(駐車場追加の場合はご相談ください。1台/3,300円※要空き確認)

※内装諸設備を変更される場合は借主者様にてご負担ください。
手数料負担割合/配分割合 貸主:-%   借主:100% / 元付:-%   客付:-%  
取り扱い会社

株式会社 長岡総合開発

新潟県長岡市南七日町89-21

情報登録日 2026/04/07 次回更新予定日 2026/05/21
  • ザ・ライトウィング 1階 事務所・店舗
    株式会社 長岡総合開発
  • この物件を問い合わせる/無料
  • TEL: 0258-46-8777

この物件の地図・周辺情報・行政情報

この物件の周辺情報・行政情報を詳しく見る
【周辺情報】
物件の近くにあるコンビニや銀行・学校など、アイコン付のマップで詳しく表示できます!
【行政情報】
水道料や下水道料・ガス料金など、暮らしに関係のある情報を表示しています。

担当取扱い店舗情報

取扱い店舗画像
株式会社 長岡総合開発
TEL: 0258-46-8777
所在地: 新潟県長岡市南七日町89-21
交通: バス停「南七日町」徒歩3分
営業時間: 9:00~18:00/定休日:日曜・祭日
免許番号: 新潟県知事(10)2876号 この会社の情報を詳しく見る
所属団体名: 新潟県宅地建物取引業協会 長岡支部
取引態様: 仲介
ホームページ: http://www.nagaoka-sk.co.jp