物件掲載企業数:299|賃貸物件:2,912件|売買物件:3,228件|今週の登録物件:351
閲覧中のブラウザ(インターネットエクスプローラー)は非推奨ブラウザです。
物件が正しく表示されなかったり、正しく検索されない場合があります。最新のブラウザ(Google Chrome・Edgeなど)にてご利用お願いいたします。
  

新潟県長岡市台町2丁目8-35 事務所 21.738万円の物件情報

ホテルニューオータニ長岡 テナント情報!! 店舗 事務所として利用可能です♬

物件名
所在地
面積
間取り
所在階
築年数
方位
賃料
管理費等
共益費
敷金
保証金
礼金
種別
構造
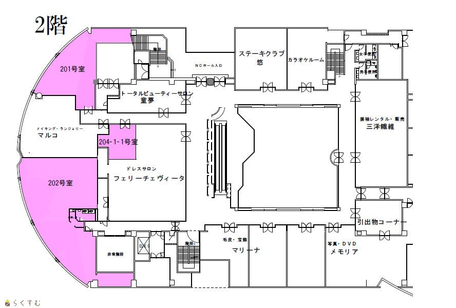
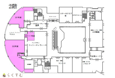
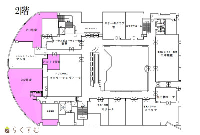
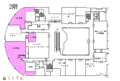
ホテルニューオータニ長岡 テナントフロア
201号室
新潟県長岡市台町2丁目8-35
119.77㎡
(36.23坪)
-
2階
47年
-
21.738万円
なし
あり
10ヶ月
なし
なし
事務所
鉄骨鉄筋コン
  • ホテルニューオータニ長岡 テナントフロア
    株式会社 長岡総合開発
  • この物件を問い合わせる/無料
  • TEL: 0258-46-8777

物件画像

外観 間取り
物件画像
※画像クリックで拡大表示
外観
物件画像
※画像クリックで拡大表示
間取り
詳細画像


物件概要

ご見学のお申込み、またはご不明な点がある場合は、お問い合わせフォームよりお気軽にご相談ください♪お電話でもかまいません。
物件コード 00030-100624
物件名 ホテルニューオータニ長岡 テナントフロア
交通 駅:上越新幹線 長岡駅から徒歩1分
所在地 新潟県長岡市台町2丁目8-35
物件種別 事務所
総戸数 -
構造 鉄骨鉄筋コン 階建 地上12階地下1階建
所在階/階数 2階/12階 号室 201号室
面積 119.77㎡ /36.23坪 方位 -
間取り -
賃料 21.738万円/月
管理費 -
礼金 -
敷金 10ヶ月
(家賃・共益費10カ月分)
ほか初期費用 - その他諸費用 敷金・保証金として
家賃+共益費の10ヶ月分が必要となります。
更新料 - 火災(家財)保険 別途加入
共益費 181,150円
町内費 -
駐車場 - バイク料金 -
鍵交換費 - 清掃料 -
更新事務手数料 -
保証区分 連帯保証人のみ
保証会社 区分:指定なし
-
連帯保証人 区分:要
-
仲介手数料 217,380円
築年月 1978年11月(築47年)
利用制限 法人:可、事務所利用:可
学校区 阪之上小学校(164m)・南中学校(1,024m)
設備 2階以上、エアコン、即引き渡し可、エレベーター
入居時期 即入居可
取引態様 仲介
備考 機械警備、有人警備、エレベーター、エスカレーター、男女トイレ別
空調:個別
光ケーブル:引込可

※条件面等につきましては、お気軽にご相談ください。
手数料負担割合/配分割合 貸主:-%   借主:100% / 元付:-%   客付:-%  
取り扱い会社

株式会社 長岡総合開発

新潟県長岡市南七日町89-21

情報登録日 2024/08/21 次回更新予定日 2026/04/05
  • ホテルニューオータニ長岡 テナントフロア
    株式会社 長岡総合開発
  • この物件を問い合わせる/無料
  • TEL: 0258-46-8777

この物件の地図・周辺情報・行政情報

この物件の周辺情報・行政情報を詳しく見る
【周辺情報】
物件の近くにあるコンビニや銀行・学校など、アイコン付のマップで詳しく表示できます!
【行政情報】
水道料や下水道料・ガス料金など、暮らしに関係のある情報を表示しています。

担当取扱い店舗情報

取扱い店舗画像
株式会社 長岡総合開発
TEL: 0258-46-8777
所在地: 新潟県長岡市南七日町89-21
交通: バス停「南七日町」徒歩3分
営業時間: 9:00~18:00/定休日:日曜・祭日
免許番号: 新潟県知事(10)2876号 この会社の情報を詳しく見る
所属団体名: 新潟県宅地建物取引業協会 長岡支部
取引態様: 仲介
ホームページ: http://www.nagaoka-sk.co.jp