物件掲載企業数:299|賃貸物件:2,912件|売買物件:3,228件|今週の登録物件:350
閲覧中のブラウザ(インターネットエクスプローラー)は非推奨ブラウザです。
物件が正しく表示されなかったり、正しく検索されない場合があります。最新のブラウザ(Google Chrome・Edgeなど)にてご利用お願いいたします。
  

新潟県長岡市台町2丁目4番56号 店舗 22万円の物件情報

定期建物賃貸借契約物件  Eプラザ2F貸店舗・30坪 賃料相談可! R8年6月1日より入居可能予定 事前予約にて受付中!

物件名
所在地
面積
間取り
所在階
築年数
方位
賃料
管理費等
共益費
敷金
保証金
礼金
種別
構造
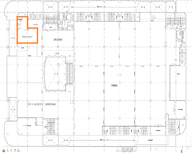
Eプラザ2F 貸店舗
新潟県長岡市台町2丁目4番56号
99.27㎡
(30.02坪)
-
2階
40年
-
22万円
なし
賃料の10%
200万円
なし
なし
店舗
鉄骨鉄筋コン
  • Eプラザ2F 貸店舗
    越後交通 株式会社
  • この物件を問い合わせる/無料
  • TEL: 0258-30-0114

物件画像

外観 間取り
物件画像
※画像クリックで拡大表示
外観
物件画像
※画像クリックで拡大表示
間取り
詳細画像


物件概要

定期建物賃貸借契約物件  Eプラザ2F貸店舗・30坪 賃料相談可! R8年6月1日より入居可能予定 事前予約にて受付中!
物件コード 00027-100336
物件名 Eプラザ2F 貸店舗
交通 駅:信越線 長岡駅から徒歩5分、バス:長岡駅東口から徒歩4分
所在地 新潟県長岡市台町2丁目4番56号
物件種別 店舗
総戸数 -
構造 鉄骨鉄筋コン 階建 地上6階地下1階建
所在階/階数 2階/6階 号室 -
面積 99.27㎡ /30.02坪 方位 -
間取り -
賃料 22万円/月
税込み
管理費 -
礼金 - 敷金 200万円
ほか初期費用 - その他諸費用 -
更新料 - 火災(家財)保険 -
共益費 22,000円
賃料の10%
町内費 -
駐車場 料金別途 従業員、来客優遇あり バイク料金 -
鍵交換費 - 清掃料 -
更新事務手数料 -
保証区分 連帯保証人+緊急連絡先
保証会社 区分:指定なし
-
連帯保証人 区分:要
要連帯保証人、 火災保険等を加入の事 
仲介手数料 -
築年月 1985年9月(築40年)
利用制限 学生:不可、子供:不可、ペット:不可、楽器:不可、ルームシェア:不可
学校区 阪之上小学校(233m)・南中学校(1,028m)
設備 融雪設備あり、エアコン、男女トイレ別、エレベーター、駐車場あり
入居時期 R8年6月1日より入居可能予定
取引態様 貸主
備考 ・電気、ガス、水道代は子メーターにて、実測精算します。           ・詳細は、お問い合わせください。
手数料負担割合/配分割合 貸主:-%   借主:-% / 元付:-%   客付:-%  
取り扱い会社

越後交通 株式会社

新潟県長岡市台町2-4-56E・PLAZA1階

情報登録日 2026/03/02 次回更新予定日 2026/04/05
  • Eプラザ2F 貸店舗
    越後交通 株式会社
  • この物件を問い合わせる/無料
  • TEL: 0258-30-0114

この物件の地図・周辺情報・行政情報

この物件の周辺情報・行政情報を詳しく見る
【周辺情報】
物件の近くにあるコンビニや銀行・学校など、アイコン付のマップで詳しく表示できます!
【行政情報】
水道料や下水道料・ガス料金など、暮らしに関係のある情報を表示しています。
NewDaysミニ 幹線長岡(コンビニ)まで580m
デイリーヤマザキ 長岡駅東口店(コンビニ)まで310m
NewDaysミニ 長岡2F1号(コンビニ)まで520m
ローソン 長岡駅大手口店(コンビニ)まで660m
ローソン 長岡今朝白一丁目店(コンビニ)まで350m
セブン-イレブン アオーレ長岡店(コンビニ)まで700m
第四北越銀行 長岡東支店(銀行)まで470m
郵便ポスト(郵便局)まで630m

※カメラのアイコンがある場合は、マウスをポイントするとその施設の画像がご覧いただけます。


担当取扱い店舗情報

取扱い店舗画像
越後交通 株式会社
TEL: 0258-30-0114
所在地: 新潟県長岡市台町2-4-56E・PLAZA1階
交通: 長岡駅東口バスロータリー前
営業時間: 10:00~18:00/定休日:なし ※年末年始、GWお盆期間は休日がございます。
免許番号: 新潟県知事(16)566号 この会社の情報を詳しく見る
所属団体名: 新潟県宅地建物取引業協会 長岡支部
取引態様: 貸主
ホームページ: http://www.echigo-kotsu.co.jp/fudosan/