物件掲載企業数:299|賃貸物件:2,911件|売買物件:3,228件|今週の登録物件:350
閲覧中のブラウザ(インターネットエクスプローラー)は非推奨ブラウザです。
物件が正しく表示されなかったり、正しく検索されない場合があります。最新のブラウザ(Google Chrome・Edgeなど)にてご利用お願いいたします。
  

新潟県長岡市千秋二丁目2788番地1 事務所 36.3万円の物件情報

定期借家契約物件

物件名
所在地
面積
間取り
所在階
築年数
方位
賃料
管理費等
共益費
敷金
保証金
礼金
種別
構造
貸事務所 6階フロア 
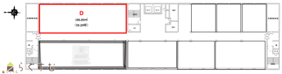
D号室
新潟県長岡市千秋二丁目2788番地1
196㎡
(59.29坪)
-
6階
40年
-
36.3万円
なし
あり
2ヶ月
なし
なし
事務所
鉄骨鉄筋コン
  • 貸事務所 6階フロア 
    越後交通 株式会社
  • この物件を問い合わせる/無料
  • TEL: 0258-30-0114

物件画像

外観 間取り
物件画像
※画像クリックで拡大表示
外観
物件画像
※画像クリックで拡大表示
間取り
詳細画像


物件概要

定期借家契約物件
物件コード 00027-100329
物件名 貸事務所 6階フロア 
交通 駅:上越新幹線 長岡駅から徒歩42分、バス:本社営業所前から徒歩3分
所在地 新潟県長岡市千秋二丁目2788番地1
物件種別 事務所
総戸数 -
構造 鉄骨鉄筋コン 階建 地上8階建
所在階/階数 6階/8階 号室 D号室
面積 196㎡ /59.29坪 方位 -
間取り -
賃料 36.3万円/月
管理費 -
礼金 - 敷金 2ヶ月
ほか初期費用 - その他諸費用 -
更新料 - 火災(家財)保険 -
共益費 110,000円
町内費 -
駐車場 7,700円
バイク料金 -
鍵交換費 - 清掃料 -
更新事務手数料 -
保証区分 連帯保証人+保証会社
保証会社 区分:加入要
保証会社名:その他 (保証会社は任意選択可)
-
連帯保証人 区分:要
必須
仲介手数料 363,000円
築年月 1985年11月(築40年)
利用制限 ペット:不可、楽器:不可、ルームシェア:不可
学校区 大島小学校(1,206m)・大島中学校(1,067m)
設備 2階以上、24時間セキュリティー、即引き渡し可、エレベーター、給湯、駐車場あり
入居時期 即入居可
取引態様 仲介
備考 ・内装工事、撤去費用は借主負担     ・間仕切り工事が必要です。    
・現況渡し     ・その他諸条件協議                              
手数料負担割合/配分割合 貸主:-%   借主:-% / 元付:-%   客付:-%  
取り扱い会社

越後交通 株式会社

新潟県長岡市台町2-4-56E・PLAZA1階

情報登録日 2025/10/27 次回更新予定日 2026/04/05
  • 貸事務所 6階フロア 
    越後交通 株式会社
  • この物件を問い合わせる/無料
  • TEL: 0258-30-0114

この物件の地図・周辺情報・行政情報

この物件の周辺情報・行政情報を詳しく見る
【周辺情報】
物件の近くにあるコンビニや銀行・学校など、アイコン付のマップで詳しく表示できます!
【行政情報】
水道料や下水道料・ガス料金など、暮らしに関係のある情報を表示しています。
セブン-イレブン 長岡寺島町店(コンビニ)まで520m
ファミリーマート 長岡赤十字病院店(コンビニ)まで580m
イオン長岡店(スーパー)まで460m
原信 寺島店(スーパー)まで700m
えちごメディカル 古正寺薬局、(株)えちごメディカル 本社(ドラッグストア)まで240m
長岡赤十字病院(病院)まで660m
救急救命センター(長岡赤十字病院)(病院)まで660m
長岡市医師会保健衛生センター(病院)まで880m

※カメラのアイコンがある場合は、マウスをポイントするとその施設の画像がご覧いただけます。


担当取扱い店舗情報

取扱い店舗画像
越後交通 株式会社
TEL: 0258-30-0114
所在地: 新潟県長岡市台町2-4-56E・PLAZA1階
交通: 長岡駅東口バスロータリー前
営業時間: 10:00~18:00/定休日:なし ※年末年始、GWお盆期間は休日がございます。
免許番号: 新潟県知事(16)566号 この会社の情報を詳しく見る
所属団体名: 新潟県宅地建物取引業協会 長岡支部
取引態様: 仲介
ホームページ: http://www.echigo-kotsu.co.jp/fudosan/