物件掲載企業数:300|賃貸物件:3,212件|売買物件:3,229件|今週の登録物件:708
閲覧中のブラウザ(インターネットエクスプローラー)は非推奨ブラウザです。
物件が正しく表示されなかったり、正しく検索されない場合があります。最新のブラウザ(Google Chrome・Edgeなど)にてご利用お願いいたします。
  

新潟県長岡市表町1丁目10-7 マンション 1DK 5.78万円の物件情報

6月上旬から入居可能です。 長岡駅近く! 近隣に商業施設多数あり!

物件名
所在地
面積
間取り
所在階
築年数
方位
賃料
管理費等
共益費
敷金
保証金
礼金
種別
構造
リバーヴュー長岡 
610号室
新潟県長岡市表町1丁目10-7
32㎡
(9.68坪)
1DK
6階
34年
指定なし
5.78万円
なし
なし
1ヶ月
なし
1ヶ月
アパート・マンション・一戸建て
鉄骨鉄筋コン
  • リバーヴュー長岡 
    越後交通 株式会社
  • この物件を問い合わせる/無料
  • TEL: 0258-30-0114

物件画像

外観 間取り
物件画像
※画像クリックで拡大表示
外観正面
物件画像
※画像クリックで拡大表示
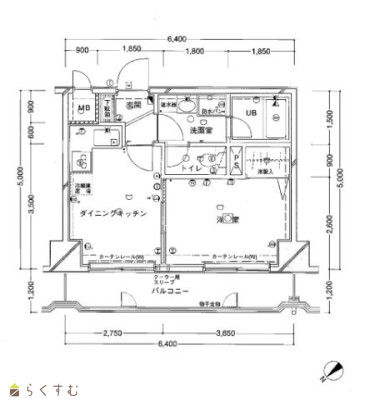
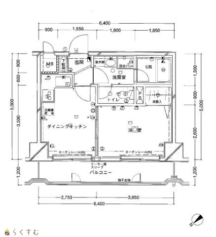
間取り
詳細画像


物件概要

6月上旬から入居可能です。 長岡駅近く! 近隣に商業施設多数あり!
物件コード 00027-100283
物件名 リバーヴュー長岡 
交通 駅:上越新幹線 長岡駅から徒歩10分、バス:大手通2丁目から徒歩4分
所在地 新潟県長岡市表町1丁目10-7
物件種別 アパート・マンション・一戸建て
総戸数 170戸
構造 鉄骨鉄筋コン 階建 地上14階建
所在階/階数 6階/14階 号室 610号室
面積 32㎡ /9.68坪 方位 指定なし
間取り 1DK (洋室:6)
DK6
賃料 5.78万円/月
管理費 -
礼金 1ヶ月
敷金 1ヶ月
ほか初期費用 - その他諸費用 -
更新料 2年毎、新賃料の一か月分 火災(家財)保険 加入のこと(任意)
共益費 - 町内費 -
駐車場 - バイク料金 -
鍵交換費 - 清掃料 -
更新事務手数料 -
保証区分 連帯保証人のみ
保証会社 区分:指定なし
-
連帯保証人 区分:要
要:連帯保証人または保証会社
仲介手数料 63,580円
築年月 1991年10月(築34年)
利用制限 シニア(60歳以上)入居:相談、ペット:不可、楽器:不可、事務所利用:相談
学校区 表町小学校(694m)・東中学校(1,320m)
設備 バス停近く、最寄り駅近く、エレベーター、宅配BOX、敷地内ゴミ置き場、24時間ゴミ出し可、駐輪場あり、エントランスオートロック、2口コンロ、IHクッキングヒーター、バストイレ別、温水洗浄便座、暖房便座、洗面所独立、エアコン、オール電化、公営水道、下水、バルコニー、クロゼット、シューズBOX、TVモニター付きインターホン、各居室照明、インターネット接続可、保証会社利用可能
入居時期 6月上旬より入居可
取引態様 代理
備考 ・バルコニーは約4.28帖で広々、洗濯物も余裕で乾きそうですね。
手数料負担割合/配分割合 貸主:-%   借主:-% / 元付:-%   客付:-%  
取り扱い会社

越後交通 株式会社

新潟県長岡市台町2-4-56E・PLAZA1階

情報登録日 2026/04/24 次回更新予定日 2026/05/08
  • リバーヴュー長岡 
    越後交通 株式会社
  • この物件を問い合わせる/無料
  • TEL: 0258-30-0114

この物件の地図・周辺情報・行政情報

この物件の周辺情報・行政情報を詳しく見る
【周辺情報】
物件の近くにあるコンビニや銀行・学校など、アイコン付のマップで詳しく表示できます!
【行政情報】
水道料や下水道料・ガス料金など、暮らしに関係のある情報を表示しています。
セブン-イレブン 長岡表町店(コンビニ)まで300m
セブン-イレブン アオーレ長岡店(コンビニ)まで530m
ローソン 長岡駅大手口店(コンビニ)まで750m
ウオロク 長岡店(スーパー)まで830m
共栄堂薬局ながおか店(ドラッグストア)まで390m
りそな銀行 長岡支店(銀行)まで120m
長岡信用金庫 本店(銀行)まで130m
第四北越銀行 長岡本店営業部(銀行)まで300m
ゆうちょ銀行 長岡店(銀行)まで450m
(株)大光銀行 千手支店(銀行)まで440m
日本政策金融公庫 長岡支店(銀行)まで480m
富山第一銀行 長岡支店(銀行)まで620m
郵便ポスト(郵便局)まで220m
長岡郵便局(郵便局)まで440m
ゆうちょ銀行 長岡店(郵便局)まで450m

※カメラのアイコンがある場合は、マウスをポイントするとその施設の画像がご覧いただけます。


担当取扱い店舗情報

取扱い店舗画像
越後交通 株式会社
TEL: 0258-30-0114
所在地: 新潟県長岡市台町2-4-56E・PLAZA1階
交通: 長岡駅東口バスロータリー前
営業時間: 10:00~18:00/定休日:なし ※年末年始、GWお盆期間は休日がございます。
免許番号: 新潟県知事(16)566号 この会社の情報を詳しく見る
所属団体名: 新潟県宅地建物取引業協会 長岡支部
取引態様: 代理
ホームページ: http://www.echigo-kotsu.co.jp/fudosan/