Wi-Fi無料使い放題!見守りカメラで安心、宅配ボックスが付いて手間いらず!一回り広いお得な角部屋です‼
| 物件名
所在地 |
面積
間取り 所在階 |
築年数
方位 |
賃料
管理費等 共益費 |
敷金
保証金 礼金 |
種別
構造 |
|---|---|---|---|---|---|
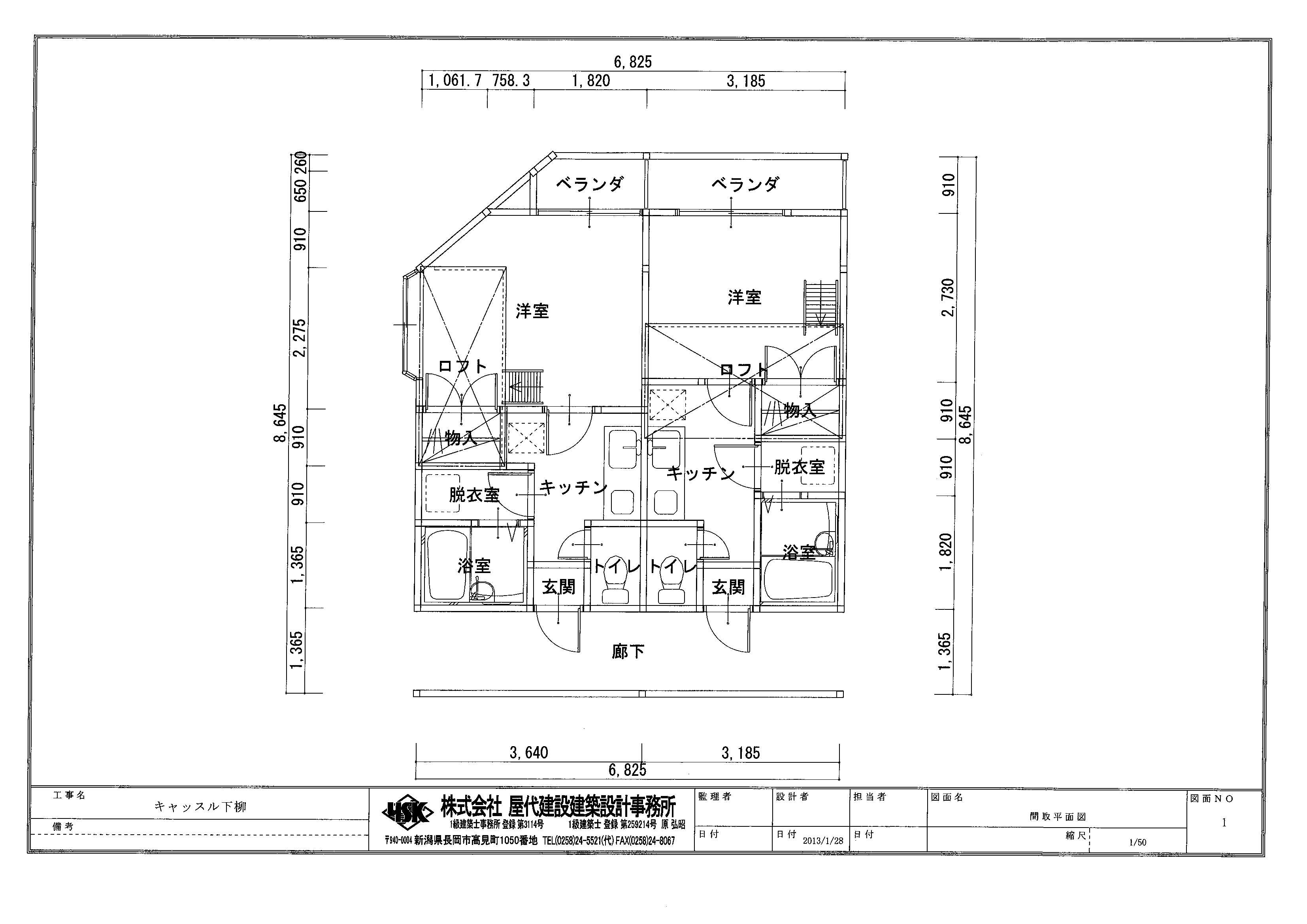
| キャッスル下柳109号室 109号室 新潟県長岡市下柳3丁目1-33 | 22.7㎡ (6.86坪) 1K 1階 | 32年 南東 | 3.8万円 なし なし | 2ヶ月 なし なし | アパート・マンション・一戸建て 木造 |
| 外観 | 間取り |
|---|---|
|
※画像クリックで拡大表示 外観
|
![]() ※画像クリックで拡大表示 間取り
|
| 詳細画像 | |
|
|
|
| 動画 | |
|
|
|
| 防音、断熱に効果のある二重サッシ、収納ばっちりのトランクボックス付きです。 | |||
| 物件コード | 00025-100003 | ||
|---|---|---|---|
| 物件名 | キャッスル下柳109号室 | ||
| 交通 | バス:江陽団地から徒歩3分 | ||
| 所在地 | 新潟県長岡市下柳3丁目1-33 | ||
| 物件種別 | アパート・マンション・一戸建て | ||
| 総戸数 | 18戸 | ||
| 構造 | 木造 | 階建 | 地上2階建 |
| 所在階/階数 | 1階/2階 | 号室 | 109号室 |
| 面積 | 22.7㎡ /6.86坪 | 方位 | 南東 |
| 間取り | 1K (洋室:7) | ||
| 賃料 | 3.8万円/月
|
管理費 | - |
| 礼金 | -
|
敷金 | 2ヶ月
|
| ほか初期費用 | - | その他諸費用 | - |
| 更新料 | - | 火災(家財)保険 |
18,000円
2年間 |
| 共益費 | - | 町内費 |
400円
|
| 駐車場 |
|
バイク料金 | - |
| 鍵交換費 | - | 清掃料 | - |
| 水道料 |
2,500円
|
||
| 更新事務手数料 | - | ||
| 保証区分 |
連帯保証人のみ |
||
| 保証会社 |
区分:指定なし
- |
||
| 連帯保証人 |
区分:要 - |
||
| 仲介手数料 |
41,800円
|
||
| 築年月 | 1994年3月(築32年) | ||
| 利用制限 | 法人:可、学生:可、単身者:可、二人入居:可、シニア(60歳以上)入居:可、ペット:不可、楽器:不可、事務所利用:不可、ルームシェア:不可 | ||
| 学校区 | 上川西小学校(106m)・江陽中学校(771m) | ||
| 設備 | 閑静な住宅街、日当り良好、外部専用物置、宅配BOX、タイヤ置き場、敷地内ゴミ置き場、ロフト、駐輪場あり、バイク置き場、駐車場1台無料、角住居、出窓、防犯カメラ、バストイレ別、ユニットバス、暖房便座、エアコン、都市ガス、バルコニー、全居室フローリング、複層サッシ、洗濯機置場 室内、脱衣所、玄関収納、トランクルーム、クロゼット、インターネット無料、各居室照明、インターネット接続可、インターネット 光、学生向け、一人暮らし・学生向け、長岡造形大学生におすすめ | ||
| 入居時期 | 5月上旬頃 | ||
| 取引態様 | 仲介 | ||
| 備考 | - | ||
| 手数料負担割合/配分割合 | 貸主:0% 借主:100% / 元付:50% 客付:50% | ||
| 取り扱い会社 |
株式会社 ヤシロ 新潟県長岡市高見町1050 |
||
| 情報登録日 | 2026/04/10 | 次回更新予定日 | 2026/04/25 |
| TEL: | 0258-24-5521 | |
|---|---|---|
| 所在地: | 新潟県長岡市高見町1050 | |
| 交通: | ||
| 営業時間: | 8:00~17:00/定休日:日曜・祭日 第2.4土曜 | |
| 免許番号: | 新潟県知事(2)第5334号 |
|
| 所属団体名: | 新潟県宅地建物取引業協会 | |
| 取引態様: | 仲介 | |
| ホームページ: | https://www.yashiro-kensetsu.co.jp | |