物件掲載企業数:297|賃貸物件:2,878件|売買物件:3,259件|今週の登録物件:352
閲覧中のブラウザ(インターネットエクスプローラー)は非推奨ブラウザです。
物件が正しく表示されなかったり、正しく検索されない場合があります。最新のブラウザ(Google Chrome・Edgeなど)にてご利用お願いいたします。
  

新潟県三条市上須頃5008番地2 アパート 1LDK 5.6万円の物件情報

築浅で設備充実の広々アパート です!Wi-Fi使用料無料♪仲介手数料や更新料も不要!三条看護・医療・歯科衛生専門学校、三条市立大学近く

物件名
所在地
面積
間取り
所在階
築年数
方位
賃料
管理費等
共益費
敷金
保証金
礼金
種別
構造
ビオラ三条
2-D号室
新潟県三条市上須頃5008番地2
35.53㎡
(10.74坪)
1LDK
2階
4年
指定なし
5.6万円
なし
あり
1ヶ月
なし
なし
アパート・マンション・一戸建て
木造
  • ビオラ三条
    株式会社 エヌ・アール・ケー総合企画
  • この物件を問い合わせる/無料
  • TEL: 0258-41-5336

物件画像

外観 間取り
物件画像
※画像クリックで拡大表示
外観
物件画像
※画像クリックで拡大表示
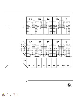
間取図
詳細画像


物件概要

備え付きのカウンター完備でテレワーク等がより便利に! 駐輪場有り◎
物件コード 00024-100765
物件名 ビオラ三条
交通 駅:上越新幹線 燕三条駅から徒歩15分、バス:上須頃野菜集荷場から徒歩6分
所在地 新潟県三条市上須頃5008番地2
物件種別 アパート・マンション・一戸建て
総戸数 10戸
構造 木造 階建 地上2階建
所在階/階数 2階/2階 号室 2-D号室
面積 35.53㎡ /10.74坪 方位 指定なし
間取り 1LDK (洋室:3.75)
LDK10
賃料 5.6万円/月
管理費 -
礼金 -
敷金 1ヶ月
ほか初期費用 - その他諸費用 -
更新料 - 火災(家財)保険 借主負担
共益費 2,000円
町内費 350円
駐車場 3,500円
バイク料金 -
鍵交換費 - 清掃料 -
更新事務手数料 -
保証区分 連帯保証人のみ
保証会社 区分:指定なし
-
連帯保証人 区分:要
連帯保証人の方がいない場合は保証会社の利用が可能です。
仲介手数料 -
築年月 2021年12月(築4年)
利用制限 -
学校区 須頃小学校(1,110m)・大島中学校(2,448m)
設備 閑静な住宅街、日当り良好、最上階、敷地内ゴミ置き場、築5年以内、駐輪場あり、駐車場 敷金なし、ディンプルキー、システムキッチン、2口コンロ、IHクッキングヒーター、バストイレ別、温水洗浄便座、暖房便座、洗面所独立、シャワー付き洗面台、エアコン、エアコン2基、都市ガス、全居室フローリング、複層サッシ、洗濯機置場 室内、脱衣所、玄関収納、クロゼット、BS端子・アンテナ、TVモニター付きインターホン、インターネット無料、各居室照明、インターネット接続可、仲介手数料不要、保証会社利用可能、礼金不要、お勧め物件
入居時期 令和8年4月上旬頃
取引態様 貸主
備考 ・室内写真は他のお部屋のものです。
・保証会社利用可能
・ペット飼育不可
・間取図が現況と異なる場合は、現況優先と致します。
手数料負担割合/配分割合 貸主:-%   借主:100% / 元付:-%   客付:100%  
取り扱い会社

株式会社 エヌ・アール・ケー総合企画

新潟県長岡市与板町与板119番地

情報登録日 2026/03/14 次回更新予定日 2026/03/29
  • ビオラ三条
    株式会社 エヌ・アール・ケー総合企画
  • この物件を問い合わせる/無料
  • TEL: 0258-41-5336

この物件の地図・周辺情報・行政情報

この物件の周辺情報・行政情報を詳しく見る
【周辺情報】
物件の近くにあるコンビニや銀行・学校など、アイコン付のマップで詳しく表示できます!
【行政情報】
水道料や下水道料・ガス料金など、暮らしに関係のある情報を表示しています。

担当取扱い店舗情報

取扱い店舗画像
株式会社 エヌ・アール・ケー総合企画
TEL: 0258-41-5336
所在地: 新潟県長岡市与板町与板119番地
交通:
営業時間: 8:30~17:30/定休日:土日・祝祭日 (電話対応しております)
免許番号: 新潟県知事(5)第4750号 この会社の情報を詳しく見る
所属団体名: 新潟県宅地建物取引業協会 長岡支部
取引態様: 貸主
ホームページ: http://www.nrk-sogo.jp