物件掲載企業数:297|賃貸物件:3,599件|売買物件:3,314件|今週の登録物件:221
閲覧中のブラウザ(インターネットエクスプローラー)は非推奨ブラウザです。
物件が正しく表示されなかったり、正しく検索されない場合があります。最新のブラウザ(Google Chrome・Edgeなど)にてご利用お願いいたします。
  

新潟県長岡市山田1丁目74-2 駐車場 2万円の物件情報

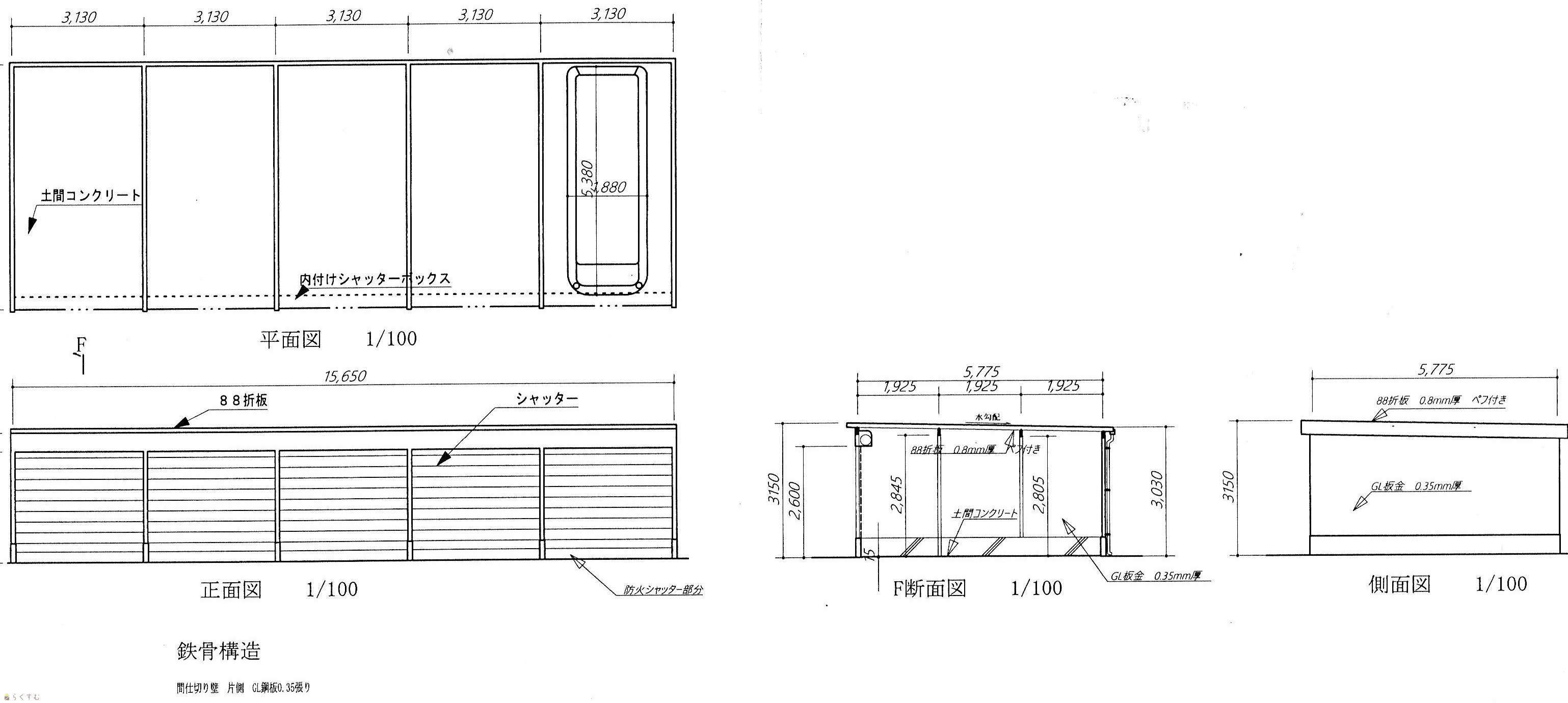
長岡長生橋至近の立地の良い鍵付きガレージです。完全独立で横幅約3m、高さ2m50cm、奥行5m50cmの大きいガレージ。

物件名
所在地
面積
間取り
所在階
築年数
方位
賃料
管理費等
共益費
敷金
保証金
礼金
種別
構造
山田町貸ガレージ
新潟県長岡市山田1丁目74-2
-
-
-
-
-
2万円
なし
なし
なし
なし
2万円
駐車場
-
  • 山田町貸ガレージ
    有限会社 渡辺土地
  • この物件を問い合わせる/無料
  • TEL: 0258-32-0325

物件画像

外観 間取り
物件画像
※画像クリックで拡大表示
外観
物件画像
※画像クリックで拡大表示
間取り
詳細画像


物件概要

横幅約3m、奥行5m50㎝、高さ約2m50㎝の大き目ガレージです。
物件コード 00019-100127
物件名 山田町貸ガレージ
交通 駅:信越線 長岡駅から徒歩20分、バス:長生橋東詰から徒歩1分
所在地 新潟県長岡市山田1丁目74-2
物件種別 駐車場
総戸数 -
構造 - 階建 -
所在階/階数 - 号室 -
面積 - 方位 -
間取り -
賃料 2万円/月
管理費 -
礼金 2万円
敷金 -
ほか初期費用 - その他諸費用 -
更新料 - 火災(家財)保険 -
共益費 - 町内費 -
駐車場 - バイク料金 -
鍵交換費 - 清掃料 -
更新事務手数料 -
保証区分 連帯保証人のみ
保証会社 区分:指定なし
-
連帯保証人 区分:要
-
仲介手数料 -
築年月 -
利用制限 -
学校区 四郎丸小学校(1,710m)・南中学校(892m)
設備 舗装、シャッター付き、融雪井戸あり
入居時期 2026年1月1日から
取引態様 貸主
備考 横幅約3m、奥行5m50㎝、高さ約2m50㎝の大き目ガレージです。
手数料負担割合/配分割合 貸主:-%   借主:-% / 元付:-%   客付:-%  
取り扱い会社

有限会社 渡辺土地

新潟県長岡市愛宕2-4-4

情報登録日 2025/12/22 次回更新予定日 2026/01/06
  • 山田町貸ガレージ
    有限会社 渡辺土地
  • この物件を問い合わせる/無料
  • TEL: 0258-32-0325

この物件の地図・周辺情報・行政情報

この物件の周辺情報・行政情報を詳しく見る
【周辺情報】
物件の近くにあるコンビニや銀行・学校など、アイコン付のマップで詳しく表示できます!
【行政情報】
水道料や下水道料・ガス料金など、暮らしに関係のある情報を表示しています。

担当取扱い店舗情報

取扱い店舗画像
有限会社 渡辺土地
TEL: 0258-32-0325
所在地: 新潟県長岡市愛宕2-4-4
交通:
営業時間: 9:00~17:00/定休日:日曜・祭日
免許番号: 新潟県知事(9)3293号 この会社の情報を詳しく見る
所属団体名: 全宅連
取引態様: 貸主
ホームページ: http://www.watanabe-tochi.co.jp