物件掲載企業数:301|賃貸物件:3,180件|売買物件:3,244件|今週の登録物件:101
閲覧中のブラウザ(インターネットエクスプローラー)は非推奨ブラウザです。
物件が正しく表示されなかったり、正しく検索されない場合があります。最新のブラウザ(Google Chrome・Edgeなど)にてご利用お願いいたします。
  

新潟県長岡市南七日町64-19 アパート 1K 4万円の物件情報

インターネット無料物件です

物件名
所在地
面積
間取り
所在階
築年数
方位
賃料
管理費等
共益費
敷金
保証金
礼金
種別
構造
メイプルタウンⅡ206号室
206号室
新潟県長岡市南七日町64-19
23.13㎡
(6.99坪)
1K
2階
28年
指定なし
4万円
なし
あり
なし
なし
なし
アパート・マンション・一戸建て
木造
  • メイプルタウンⅡ206号室
    有限会社 五十嵐商事
  • この物件を問い合わせる/無料
  • TEL: 0258-28-1414

物件画像

外観 間取り
物件画像
※画像クリックで拡大表示
外観
物件画像
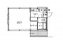
※画像クリックで拡大表示
平面図
詳細画像


物件概要

物件コード 00004-100665
物件名 メイプルタウンⅡ206号室
交通 駅:長岡駅、バス:南七日町から徒歩1分
所在地 新潟県長岡市南七日町64-19
物件種別 アパート・マンション・一戸建て
総戸数 -
構造 木造 階建 地上2階建
所在階/階数 2階/2階 号室 206号室
面積 23.13㎡ /6.99坪 方位 指定なし
間取り 1K (洋室:8)
賃料 4万円/月
管理費 -
礼金 -
敷金 -
ほか初期費用 - その他諸費用 -
更新料 - 火災(家財)保険 要加入
共益費 3,000円
町内費 200円
駐車場
付無料
バイク料金 -
鍵交換費 17,600円
清掃料 -
更新事務手数料 -
保証区分 保証会社+緊急連絡先
保証会社 区分:加入要
保証会社名:ジェイリース
①Jフラット 初回保証料 月額の総賃料70%、継続保証料 月額1,200円 ②学生プラン 初回保証料 一律 2万円、継続保証料 月額1,000円 ③留学生 連帯保証人 学校、敷金 4万円
家賃保証金 30,240円
連帯保証人 区分:不要
-
仲介手数料 44,000円
築年月 1997年10月(築28年)
利用制限 二人入居:不可、ペット:不可、楽器:不可
学校区 日越小学校(1,006m)・西中学校(1,201m)
設備 閑静な住宅街、バス停近く、敷地内ゴミ置き場、ロフト、駐車場1台無料、角住居、IHクッキングヒーター、バストイレ別、温水洗浄便座、エアコン、オール電化、公営水道、下水、全居室フローリング、TVモニター付きインターホン、インターネット無料、各居室照明、保証会社利用可能、礼金不要、敷金・礼金不要、学生向け、一人暮らし・学生向け、保証会社要加入、長岡造形大学生におすすめ、長岡技術科学大学生におすすめ
入居時期 2026年4月上旬頃入居可
取引態様 仲介
備考 インターネット月額利用料は無料になります。契約費用・工事料金が別途かかります。
手数料負担割合/配分割合 貸主:0%   借主:100% / 元付:50%   客付:50%  
取り扱い会社

有限会社 五十嵐商事

新潟県長岡市三ツ郷屋2丁目5-23

情報登録日 2026/02/27 次回更新予定日 2026/05/21
  • メイプルタウンⅡ206号室
    有限会社 五十嵐商事
  • この物件を問い合わせる/無料
  • TEL: 0258-28-1414

この物件の地図・周辺情報・行政情報

この物件の周辺情報・行政情報を詳しく見る
【周辺情報】
物件の近くにあるコンビニや銀行・学校など、アイコン付のマップで詳しく表示できます!
【行政情報】
水道料や下水道料・ガス料金など、暮らしに関係のある情報を表示しています。

担当取扱い店舗情報

取扱い店舗画像
有限会社 五十嵐商事
TEL: 0258-28-1414
所在地: 新潟県長岡市三ツ郷屋2丁目5-23
交通: 西長岡案内所バス停徒歩2分
営業時間: 平日9時~18時・土曜日10時~15時(3月休みなし)/定休日:日曜、祝祭日、年末年始(12/27~1/4)
免許番号: 新潟県知事(14)1645号 この会社の情報を詳しく見る
所属団体名: 新潟県宅地建物取引業協会 長岡支部
取引態様: 仲介
ホームページ: https://ikarashi-shouji.com/