物件掲載企業数:299|賃貸物件:2,870件|売買物件:3,228件|今週の登録物件:302
閲覧中のブラウザ(インターネットエクスプローラー)は非推奨ブラウザです。
物件が正しく表示されなかったり、正しく検索されない場合があります。最新のブラウザ(Google Chrome・Edgeなど)にてご利用お願いいたします。
  

長岡市貸店舗一覧

表示切替: 一覧表示 地図表示    並び替え:
画像 物件名
所在地
取扱店
面積
間取り
所在階
築年数
賃料
管理費等
共益費
敷金
保証金
礼金
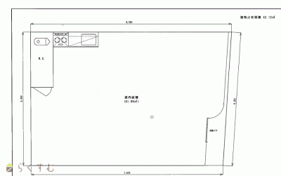
柿川沿い小スペースの店舗用。改装自由、各種応談します
物件画像
物件画像
物件画像
物件画像
詳細☆お気に入り★お気に入り
柏町スロウハイツ1階店舗
    新潟県長岡市柏町2-8-29柏町スロウハイツ1階
    (店舗)
    19.44㎡
    (5.88坪)
    -
    1階
    不詳
    3.3万円
    なし
    なし
    3ヶ月
    なし
    なし
    写真たくさんあり!!
    エステ・マッサージ・マツエク又は事務所等 個人経営の店舗にピッタリ
    物件画像
    物件画像
    物件画像
    物件画像
    詳細☆お気に入り★お気に入り
    美容サービス向け 貸店舗
      新潟県長岡市平1丁目95番地3
      (店舗)
      19.83㎡
      (5.99坪)
      -
      -
      24年
      4.4万円
      なし
      なし
      なし
      なし
      なし
      写真たくさんあり!!
      内覧を希望される方はお気軽にお問い合わせください!
      物件画像
      物件画像
      物件画像
      物件画像
      詳細☆お気に入り★お気に入り
      土合嘉井ビル(左)
      左号室
        新潟県長岡市土合1丁目5-10
        (店舗)
        41.34㎡
        (12.5坪)
        -
        1階
        49年
        5万円
        なし
        なし
        3ヶ月
        なし
        なし
        写真たくさんあり!!
        物置、アトリエにおすすめです。
        物件画像
        物件画像
        物件画像
        物件画像
        詳細☆お気に入り★お気に入り
        今井ビル 地下
          新潟県長岡市台町1丁目9-15
          (店舗)
          42.18㎡
          (12.75坪)
          -
          -
          47年
          5.5万円
          なし
          なし
          2ヶ月
          なし
          なし
          写真たくさんあり!!
          *賃料改定しました*店舗・事務所としての利用可!休憩スペースもあります。
          物件画像
          物件画像
          物件画像
          物件画像
          詳細☆お気に入り★お気に入り
          西山貸店舗
            新潟県長岡市新町3丁目4-5
            (店舗)
            146㎡
            (44.16坪)
            -
            -
            不詳
            6万円
            なし
            なし
            2ヶ月
            なし
            なし
            ♪長岡市中心街 長岡駅徒歩圏内 約6分♪
            物件画像
            物件画像
            物件画像
            物件画像
            詳細☆お気に入り★お気に入り
            【東坂之上】貸店舗・住宅 (店舗部分約18㎡)
              新潟県長岡市東坂之上町3丁目1-9
              (店舗)
              113.26㎡
              (34.26坪)
              -
              -
              49年
              6万円
              なし
              なし
              3ヶ月
              なし
              なし
              写真たくさんあり!!
              長岡駅近くの店舗物件です。駐車場1台付
              物件画像
              物件画像
              物件画像
              物件画像
              詳細☆お気に入り★お気に入り
              アメジストビル新館3F
                新潟県長岡市坂之上町2-4-11アメジストビル新館3F
                (店舗)
                28.8㎡
                (8.71坪)
                -
                3階
                不詳
                6.05万円
                なし
                なし
                3ヶ月
                なし
                なし
                写真たくさんあり!!
                飲食店 事務所としてもご利用できます。
                物件画像
                物件画像
                物件画像
                物件画像
                詳細☆お気に入り★お気に入り
                東坂之上ビル
                  新潟県長岡市東坂之上町1丁目5-9
                  (店舗)
                  173.54㎡
                  (52.49坪)
                  -
                  2階
                  不詳
                  6.5万円
                  3,580円/月
                  なし
                  3ヶ月
                  なし
                  なし
                  写真たくさんあり!!
                  喜多町プラザ内1階貸店舗です★お客様駐車場は全テナント共有・社員用駐車場は1台3,300円です!(融雪設備あり)
                  物件画像
                  物件画像
                  物件画像
                  物件画像
                  詳細☆お気に入り★お気に入り
                  喜多町プラザ 1階 裏口玄関右
                    新潟県長岡市喜多町字下川原1000-1
                    (店舗)
                    20㎡
                    (6.05坪)
                    -
                    1階
                    45年
                    6.6万円
                    なし
                    なし
                    12万円
                    なし
                    6.6万円
                    写真たくさんあり!!
                    居抜き物件!!
                    物件画像
                    物件画像
                    物件画像
                    物件画像
                    詳細☆お気に入り★お気に入り
                    ドルミー有楽ビル
                    203号室
                      新潟県長岡市坂之上町1-1-3
                      (店舗)
                      24.34㎡
                      (7.36坪)
                      -
                      -
                      61年
                      6.6万円
                      7,300円/月
                      なし
                      18万円
                      なし
                      6.6万円
                      写真たくさんあり!!
                      喜多町プラザ内1階貸店舗です★お客様駐車場は全テナント共有・社員用駐車場は1台3,300円です!(融雪設備あり)
                      物件画像
                      物件画像
                      物件画像
                      物件画像
                      詳細☆お気に入り★お気に入り
                      喜多町プラザ 1階 裏口玄関左
                        新潟県長岡市喜多町字下川原1000-1
                        (店舗)
                        20.16㎡
                        (6.09坪)
                        -
                        1階
                        45年
                        6.6万円
                        なし
                        なし
                        12万円
                        なし
                        6.6万円
                        写真たくさんあり!!
                        物件画像
                        物件画像
                        物件画像
                        物件画像
                        詳細☆お気に入り★お気に入り
                        棚橋不動産 関東町ビル(旧斉木ビル)
                        101号室
                          新潟県長岡市関東町3番地9
                          (店舗)
                          32.05㎡
                          (9.69坪)
                          -
                          1階
                          52年
                          6.6万円
                          なし
                          なし
                          2ヶ月
                          なし
                          1ヶ月
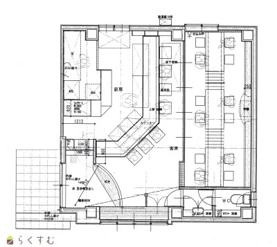
                          柿川沿いのビルの1階・2階をリノベーションした複数のお店などが集まる施設です。プロジェクトの詳細に興味のある方はお問い合わせください!
                          物件画像
                          物件画像
                          物件画像
                          物件画像
                          詳細☆お気に入り★お気に入り
                          KAKIGAWA LIVING PARK(A-1区画)
                          A-1号室
                            新潟県長岡市中島4丁目12-5
                            (店舗)
                            42.6㎡
                            (12.88坪)
                            -
                            1階
                            49年
                            6.6万円
                            5,000円/月
                            なし
                            6ヶ月
                            なし
                            なし
                            写真たくさんあり!!
                            事務所使用可
                            物件画像
                            物件画像
                            物件画像
                            物件画像
                            詳細☆お気に入り★お気に入り
                            片桐ビル3階
                              新潟県長岡市大島新町4丁目122-4
                              (店舗)
                              64.72㎡
                              (19.57坪)
                              -
                              3階
                              46年
                              6.6万円
                              なし
                              なし
                              18万円
                              なし
                              1ヶ月
                              写真たくさんあり!!
                              VRビューあり!!
                              駐車場2台ついてます
                              物件画像
                              物件画像
                              物件画像
                              物件画像
                              詳細☆お気に入り★お気に入り
                              新町2丁目『西山事務所』 駐車場2台付き(屋根付き)
                                長岡市新町2-2-20
                                (店舗)
                                41.89㎡
                                (12.67坪)
                                -
                                -
                                不詳
                                7万円
                                なし
                                なし
                                3ヶ月
                                なし
                                なし
                                写真たくさんあり!!
                                ★喜多町バス通りの4階建てビルです★ 3階北側道路側に面しているお部屋で、事務所・店舗利用どちらでもお使いいだけます。 エレベーターあり 敷地内駐車場2台付き
                                物件画像
                                物件画像
                                物件画像
                                物件画像
                                詳細☆お気に入り★お気に入り
                                第一戸貴田ビル 3階北側 事務所・店舗
                                  新潟県長岡市喜多町1084-4
                                  (店舗)
                                  58.58㎡
                                  (17.72坪)
                                  -
                                  3階
                                  47年
                                  7.15万円
                                  なし
                                  なし
                                  19.5万円
                                  なし
                                  7.15万円
                                  写真たくさんあり!!
                                  分譲マンション1階♪路面♪
                                  物件画像
                                  物件画像
                                  物件画像
                                  物件画像
                                  詳細☆お気に入り★お気に入り
                                  ダイアパレス表町1階貸店舗
                                  1F店舗号室
                                    新潟県長岡市表町3丁目3-3
                                    (店舗)
                                    70.96㎡
                                    (21.46坪)
                                    -
                                    1階
                                    35年
                                    7.7万円
                                    なし
                                    なし
                                    3ヶ月
                                    なし
                                    なし
                                    写真たくさんあり!!
                                    長岡駅近くの店舗物件です。駐車場1台付
                                    物件画像
                                    物件画像
                                    物件画像
                                    物件画像
                                    詳細☆お気に入り★お気に入り
                                    アメジストビル旧館2F
                                      新潟県長岡市坂之上町2-4-11アメジストビル旧館2F
                                      (店舗)
                                      53.64㎡
                                      (16.22坪)
                                      -
                                      2階
                                      不詳
                                      7.7万円
                                      なし
                                      なし
                                      3ヶ月
                                      なし
                                      なし
                                      写真たくさんあり!!
                                      飲食店可 什器設備付き!
                                      物件画像
                                      物件画像
                                      物件画像
                                      物件画像
                                      詳細☆お気に入り★お気に入り
                                      西新町貸店舗 2F
                                        新潟県長岡市西新町2-1-15
                                        (店舗)
                                        102.64㎡
                                        (31.04坪)
                                        -
                                        2階
                                        38年
                                        7.7万円
                                        なし
                                        なし
                                        2ヶ月
                                        なし
                                        1ヶ月
                                        【駐車場2台付き(追加駐車場相談可)】事務所としても店舗としても利用可能!フェニックス大橋近くでアクセス抜群♬キッチン・水洗トイレ付きです(^^♪
                                        物件画像
                                        物件画像
                                        物件画像
                                        物件画像
                                        詳細☆お気に入り★お気に入り
                                        ザ・ライトウィング 1階 事務所・店舗
                                        103号室
                                          新潟県長岡市下山2丁目2421−2
                                          (店舗)
                                          46.68㎡
                                          (14.12坪)
                                          -
                                          1階
                                          38年
                                          7.7万円
                                          なし
                                          なし
                                          14万円
                                          なし
                                          7.7万円
                                          写真たくさんあり!!
                                          表示切替: 一覧表示 地図表示    並び替え:
                                          0件がマッチ
                                          基本条件
                                          物件種別 店舗
                                          賃料


                                          間取り
                                          所在階
                                          面積
                                          築年数
                                          方位
                                          おすすめ条件
                                          情報公開日
                                          0件がマッチ
                                          人気のあるこだわり条件